Erstbezug: Traumhaftes Townhouse mit Terrasse und Garten im 19. Bezirk
1190 Wien, Döbling


































140,97 m²4 Zimmer€ 4.999,00
Objektinformation
Kosten
Gesamtbelastung (brutto)€ 4.999,00
Gesamtbelastung (netto)€ 4.544,55
Summe Miete (netto)€ 4.121,64
Betriebskosten (netto)€ 422,91
Provision
Gemäß Erstauftraggeberprinzip bezahlt der Abgeber die Provision.
Kautionshinweis
3 Bruttomonatsmieten
Vertragsart
, Miete , befristet
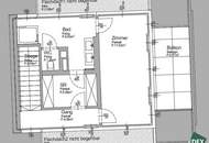
Wohnfläche
140,97 m2 (4 Zimmer)
Freifläche
, Balkon, Garten (210,14m²), Terrasse
Bauart
Neubau: 2025
Energie
HWB44,8 kWh/m²
HWB-KlasseC
fGEE0,66
fGEE-KlasseA+
Energieausweis bis2035-09-06
Beschreibung
PROJEKTVORSTELLUNG
In bester Lage im 19. Bezirk entstehen bis voraussichtlich Februar 2026 insgesamt 10 stilvoll ausgestattete Neubauwohnungen sowie 1 modernes Townhouse zur Miete. Das Projekt vereint modernes Wohnen mit durchdachter Architektur, nachhaltiger Energieversorgung und hochwertiger Ausstattung.
Die Wohnungen mit einer Größe von ca. 48 m² bis 137 m² verfügen über ein bis drei Zimmer und bieten großzügige Grundrisse mit durchdachter Raumaufteilung. Beinahe jede Einheit verfügt über eine Freifläche in Form von Balkon, Terrasse oder Garten – für mehr L..
In bester Lage im 19. Bezirk entstehen bis voraussichtlich Februar 2026 insgesamt 10 stilvoll ausgestattete Neubauwohnungen sowie 1 modernes Townhouse zur Miete. Das Projekt vereint modernes Wohnen mit durchdachter Architektur, nachhaltiger Energieversorgung und hochwertiger Ausstattung.
Die Wohnungen mit einer Größe von ca. 48 m² bis 137 m² verfügen über ein bis drei Zimmer und bieten großzügige Grundrisse mit durchdachter Raumaufteilung. Beinahe jede Einheit verfügt über eine Freifläche in Form von Balkon, Terrasse oder Garten – für mehr L..
Mehr
Auswahl ändern
Anbieter

Anbieter
David Schober, MSc
EDEX Immobilien GmbHTelefon
+436763...

Anbieter kontaktieren