Modernes Reihenhaus mit großzügigem Garten in idyllischer Ruhelage – Nähe Bahnhof Unterfladnitz
8181 St. Ruprecht an der Raab





























Objektinformation
Kosten
Kaufpreis€ 595.000
Provision
3% des Kaufpreises zzgl. 20% USt.
Vertragsart
, Kauf
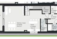
Wohnfläche
134,87 m2 (4 Zimmer)
Freifläche
, Garten (221,03m²), Loggia
Objektart
Massivhaus
Bauart
Neubau: 2023
Energie
HWB38 kWh/m²
HWB-KlasseB
fGEE0,65
fGEE-KlasseA+
Energieausweis bis2033-05-09
Beschreibung
ANKOMMEN. AUFATMEN. IM GRÜNEN ZUHAUSE SEIN.
Ein Zuhause, das vom ersten Moment an Geborgenheit ausstrahlt – offen, hell und mit Liebe zum Detail gestaltet.
Dieses moderne Reihenhaus vereint stilvolle Architektur, durchdachte Raumplanung und ein außergewöhnliches Wohngefühl – ideal für Familien, Paare oder Berufstätige, die Wert auf Lebensqualität legen.
OBJEKTBESCHREIBUNG
Das Herzstück des Hauses ist der weitläufige Wohn- und Essbereich – lichtdurchflutet, offen gestaltet und mit hohen Raumhöhen, die ein einzigartiges Raumgefühl schaffen. Über eine großzügige Hebes..
Ein Zuhause, das vom ersten Moment an Geborgenheit ausstrahlt – offen, hell und mit Liebe zum Detail gestaltet.
Dieses moderne Reihenhaus vereint stilvolle Architektur, durchdachte Raumplanung und ein außergewöhnliches Wohngefühl – ideal für Familien, Paare oder Berufstätige, die Wert auf Lebensqualität legen.
OBJEKTBESCHREIBUNG
Das Herzstück des Hauses ist der weitläufige Wohn- und Essbereich – lichtdurchflutet, offen gestaltet und mit hohen Raumhöhen, die ein einzigartiges Raumgefühl schaffen. Über eine großzügige Hebes..
Mehr
Lage
Top-Lage im Grünen mit perfekter Anbindung – Leben zwischen Stadt und Land
Das Reihenhaus befindet sich in einer bevorzugten Wohnlage nahe St. Ruprecht an der Raab, eingebettet in die sanfte Hügellandschaft der Oststeiermark. Die Umgebung ist geprägt von Natur, Ruhe und hoher Lebensqualität – gleichzeitig profitieren Sie von einer hervorragenden Infrastruktur und Verkehrsanbindung.
Besonders hervorzuheben ist die Nähe zum Bahnhof Unterfladnitz, der in nur etwa 3 Gehminuten erreichbar ist. Von hier aus bestehen direkte Verbindungen nach Graz, Gleisdorf, Weiz und in weitere zentrale Regionen – ideal für Berufspendler oder Familien mit schulpflichtigen Kindern.
In der nahen Umgebung finden sich alle wichtigen Einrichtungen des täglichen Bedarfs: Supermärkte, Bäckereien, Ärzte, Apotheken, Kindergärten und Schulen. Die Gemeinde St. Ruprecht an der Raab zählt zu den beliebtesten Wohngegenden der Region, nicht zuletzt durch ihr aktives Vereinsleben, gute Freizeitangebote und die Nähe zu Wirtschaftsstandorten.
Ob Spaziergänge in der Natur, Radfahren entlang der Raab, ein Besuch am Wochenmarkt oder schnelle Wege in die Stadt – diese Lage bietet die perfekte Balance zwischen ländlicher Idylle und urbaner Erreichbarkeit.
Das Reihenhaus befindet sich in einer bevorzugten Wohnlage nahe St. Ruprecht an der Raab, eingebettet in die sanfte Hügellandschaft der Oststeiermark. Die Umgebung ist geprägt von Natur, Ruhe und hoher Lebensqualität – gleichzeitig profitieren Sie von einer hervorragenden Infrastruktur und Verkehrsanbindung.
Besonders hervorzuheben ist die Nähe zum Bahnhof Unterfladnitz, der in nur etwa 3 Gehminuten erreichbar ist. Von hier aus bestehen direkte Verbindungen nach Graz, Gleisdorf, Weiz und in weitere zentrale Regionen – ideal für Berufspendler oder Familien mit schulpflichtigen Kindern.
In der nahen Umgebung finden sich alle wichtigen Einrichtungen des täglichen Bedarfs: Supermärkte, Bäckereien, Ärzte, Apotheken, Kindergärten und Schulen. Die Gemeinde St. Ruprecht an der Raab zählt zu den beliebtesten Wohngegenden der Region, nicht zuletzt durch ihr aktives Vereinsleben, gute Freizeitangebote und die Nähe zu Wirtschaftsstandorten.
Ob Spaziergänge in der Natur, Radfahren entlang der Raab, ein Besuch am Wochenmarkt oder schnelle Wege in die Stadt – diese Lage bietet die perfekte Balance zwischen ländlicher Idylle und urbaner Erreichbarkeit.
Auswahl ändern
Anbieter

Anbieter
Patrick Hrauda, BA
Schantl ITH Immobilientreuhand GmbHTelefon
+43 676 3...

Anbieter kontaktieren