Sanierungsbedürftige Wohnung zwischen Prater und Donauinsel gelegen!
1020 Wien, Leopoldstadt, Vorgartenstraße











Objektinformation
Kosten
Kaufpreis€ 280.000
Betriebskosten (netto)€ 206,85
Provision
3% des Kaufpreises zzgl. 20% USt.
Vertragsart
, Kauf
Wohnfläche
70,01 m2 (3 Zimmer)
Bauart
Neubau: 1956
Energie
HWB129,8 kWh/m²
HWB-KlasseD
fGEE2,02
fGEE-KlasseD
Energieausweis bis2013-03-23
Beschreibung
Die Liegenschaft wurde 1956 errichtet und befindet sich in einem guten Erhaltungszustand.
Im Zuge der Wohnungseigentumsbegründung kommen nun insgesamt 7 Wohnungen in die Vermarktung.
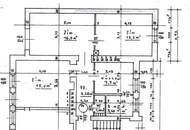
Die Wohnung, Top 14, im 2.Stock gelegen, befindet sich in einem sanierungsbedürftigen Zustand.
Diese Einheit verfügt über einen guten Grundriss (3 geräumige Zimmer, separate Küche, Bad mit Fenster, …) und hat eine Wohnfläche von knapp 70 m2.
Gerne übermitteln wir Ihnen auf Anfrage weiterführende Unterlagen und stehen für eine Besichtigung zu Ihrer ..
Im Zuge der Wohnungseigentumsbegründung kommen nun insgesamt 7 Wohnungen in die Vermarktung.
Die Wohnung, Top 14, im 2.Stock gelegen, befindet sich in einem sanierungsbedürftigen Zustand.
Diese Einheit verfügt über einen guten Grundriss (3 geräumige Zimmer, separate Küche, Bad mit Fenster, …) und hat eine Wohnfläche von knapp 70 m2.
Gerne übermitteln wir Ihnen auf Anfrage weiterführende Unterlagen und stehen für eine Besichtigung zu Ihrer ..
Mehr
Lage
Die Liegenschaft befindet sich in der Vorgartenstraße, nur wenige Gehminuten vom Prater, dem neuen Messegelände bzw. der neuen Wirtschaftsuniversität entfernt.
Die Anbindung an das öffentliche Verkehrsnetz ist als ausgezeichnet zu bewerten.
Eine Vielzahl an öffentlichen Verkehrslinien, wie die U-Bahn Linien U1 und U2, die neue Straßenbahn-Linie 12, die Autobus-Linien 11A und 82A sowie verschiedene S-Bahn-Linien und diverse Regionalzüge befinden sich in fußläufiger Umgebung.
Ebenso gibt es eine Vielzahl an Einkaufsmöglichkeiten. Der Praterstern gewährleistet eine Nahversorgung zu unüblichen Öffnungszeiten, selbst an Feiertagen kann man seinen Einkauf erledigen.
Ein neu errichtetes Ärztezentrum, die FH Technikum Wien, als auch die Wirtschaftsuniversität Wien führten zu weitreichenden Investitionen punkto Infrastruktur und gewährleisten auch in Zukunft die Qualität dieser Lage!
Die Freizeit- und Erholungsmöglichkeiten sind durch Donauinsel und Prater einzigartig!
Diese Lebensqualität ist selbst in einer Stadt wie Wien schwer wieder zu finden!
Die Anbindung an das öffentliche Verkehrsnetz ist als ausgezeichnet zu bewerten.
Eine Vielzahl an öffentlichen Verkehrslinien, wie die U-Bahn Linien U1 und U2, die neue Straßenbahn-Linie 12, die Autobus-Linien 11A und 82A sowie verschiedene S-Bahn-Linien und diverse Regionalzüge befinden sich in fußläufiger Umgebung.
Ebenso gibt es eine Vielzahl an Einkaufsmöglichkeiten. Der Praterstern gewährleistet eine Nahversorgung zu unüblichen Öffnungszeiten, selbst an Feiertagen kann man seinen Einkauf erledigen.
Ein neu errichtetes Ärztezentrum, die FH Technikum Wien, als auch die Wirtschaftsuniversität Wien führten zu weitreichenden Investitionen punkto Infrastruktur und gewährleisten auch in Zukunft die Qualität dieser Lage!
Die Freizeit- und Erholungsmöglichkeiten sind durch Donauinsel und Prater einzigartig!
Diese Lebensqualität ist selbst in einer Stadt wie Wien schwer wieder zu finden!
Auswahl ändern
Anbieter

Anbieter
Christoph Kral
WINEGG Makler GmbHTelefon
+43 676 6...

Anbieter kontaktieren