INNSTRASSE, FERNBLICK, 103 m2 Dachgeschoß-Maisonette mit Loggia, 2 Zimmer, Galerie, Komplettküche, Wannenbad, Parketten
1200 Wien, Brigittenau, Innstrasse

















































2 Zimmer€ 1.748,04
Objektinformation
Kosten
Gesamtbelastung (brutto)€ 1.748,04
Gesamtbelastung (netto)€ 1.589,13
Summe Miete (netto)€ 1.310,00
Betriebskosten (netto)€ 255,62
Provision
Gemäß Erstauftraggeberprinzip bezahlt der Abgeber die Provision.
Kautionshinweis
€ 5.250,00
Vertragsart
, Miete , befristet
Wohnfläche
keine Angabe
Freifläche
, Loggia
Objektart
Etagenwohnung
Bauart
Neubau
Energie
HWB37,4 kWh/m²
HWB-KlasseB
fGEE1,06
fGEE-KlasseC
Beschreibung
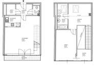
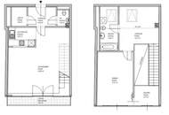
IN DER INNSTRASSE GELANGT DIESE 102,77 M2 DACHGESCHOSS-MAISONETTE INKLUSIVE CA. 4,83 M2 LOGGIA ZUR BEFRISTETEN VERMIETUNG
VORZIMMER, WOHNRAUM MIT OFFENER KÜCHE, CA. 4,83 M2 LOGGIA, SCHLAFZIMMER, GALERIE, BADEZIMMER MIT WC, SEPARATES WC, ABSTELLRAUM UND KELLERABTEIL
AUSSTATTUNG:
+ CA. 4,83 M2 LOGGIA (SÜDLICH)
+ KÜCHE MIT EINBAUGERÄTE
+ BADEZIMMER MIT BADEWANNE, WASCHTISCH, WC UND WASCHMASCHINENANSCHLUSS
+ PARKETTBÖDEN, FLIESEN IN DEN NASSRÄUMEN
+ TELEKABELFERNSEHANSCHLUSS, GEGENSPRECHANLAGE
+ FERNWÄRMEHEIZUNG
+ KELLERABTEIL
+ LIFT, FAHRRAD-/KINDERWAGENA..
VORZIMMER, WOHNRAUM MIT OFFENER KÜCHE, CA. 4,83 M2 LOGGIA, SCHLAFZIMMER, GALERIE, BADEZIMMER MIT WC, SEPARATES WC, ABSTELLRAUM UND KELLERABTEIL
AUSSTATTUNG:
+ CA. 4,83 M2 LOGGIA (SÜDLICH)
+ KÜCHE MIT EINBAUGERÄTE
+ BADEZIMMER MIT BADEWANNE, WASCHTISCH, WC UND WASCHMASCHINENANSCHLUSS
+ PARKETTBÖDEN, FLIESEN IN DEN NASSRÄUMEN
+ TELEKABELFERNSEHANSCHLUSS, GEGENSPRECHANLAGE
+ FERNWÄRMEHEIZUNG
+ KELLERABTEIL
+ LIFT, FAHRRAD-/KINDERWAGENA..
Mehr
Weitere Preisinformationen
- Sonstige Kosten€ 23,51
Lage
INNSTRASSE mit bester Infrastruktur des 20. Bezirks (Vorgartenstraße, Traisengasse, Handelskai, Dresdner Straße, Donauinsel, Millenium City, Lorenz-Böhler Unfallkrankenhaus, Engerthgasse, Augarten) sowie guten Verkehrsanbindungen wie die U1-Station Vorgartenstraße, U6-Station Dresdner Straße, S-Bahn-Station Traisengasse mit S1, S2, S3, S4, S7 sowie die Linien 5A, 11A, 37A und O, 2, 5, 12 sind in Reichweite. Weiters erlangen Sie via A22 Doanuuferautobahn die Anbindungen an die Autobahnen A21, A4 sowie A2 in kürzester Zeit. Naherholungsgebiete, wie der nahegelegene Augarten, der Donaukanal, die Donauinsel oder der leicht erreichbare Donaupark sind gut und schnell zu erreichen.
Auswahl ändern
Anbieter

Anbieter
Alexander Ros
ROS REALITÄTEN OGTelefon
+43 664 466...

Anbieter kontaktieren