Wohlfühlwohnen nahe der Donau – 2-Zimmer-Wohnung mit durchdachtem Grundriss & Einbauküche!
1200 Wien, Brigittenau, Innstraße










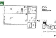
66,8 m²2 Zimmer€ 875,15
Objektinformation
Kosten
Gesamtbelastung (brutto)€ 875,15
Gesamtbelastung (netto)€ 795,59
Summe Miete (netto)€ 605,21
Betriebskosten (netto)€ 190,38
Provision
Gemäß Erstauftraggeberprinzip bezahlt der Abgeber die Provision.
Kautionshinweis
3 Bruttomonatsmieten
Vertragsart
, Miete
Wohnfläche
66,8 m2 (2 Zimmer)
Bauart
Neubau: 2009
Energie
HWB42,3 kWh/m²
HWB-KlasseB
fGEE1,06
fGEE-KlasseC
Beschreibung
Gepflegte Mietwohnungen nahe Donau, Augarten und Prater
In zentraler Lage des 20. Bezirks gelangen mehrere 1- bis 3-Zimmer-Wohnungen mit Wohnflächen zwischen 44 m² und 89 m² zur unbefristeten Vermietung.
Die Wohnungen punkten mit einem durchdachten Grundriss, hellen Räumen und einer praktischen Ausstattung, die ein angenehmes Wohngefühl vermittelt.
Das bietet Ihnen die Liegenschaft:
* Wohnungsgrößen: 44 m² bis 89 m²
* Zimmeranzahl: 1 bis 3 Zimmer
* Einbauküche
* Unbefristete Mietverträge
* Gute Raumaufteilung & angenehme Hel..
In zentraler Lage des 20. Bezirks gelangen mehrere 1- bis 3-Zimmer-Wohnungen mit Wohnflächen zwischen 44 m² und 89 m² zur unbefristeten Vermietung.
Die Wohnungen punkten mit einem durchdachten Grundriss, hellen Räumen und einer praktischen Ausstattung, die ein angenehmes Wohngefühl vermittelt.
Das bietet Ihnen die Liegenschaft:
* Wohnungsgrößen: 44 m² bis 89 m²
* Zimmeranzahl: 1 bis 3 Zimmer
* Einbauküche
* Unbefristete Mietverträge
* Gute Raumaufteilung & angenehme Hel..
Mehr
Lage
Vorgartenstraße, Handelskai, Donau, Dresdner Straße, Augarten, Prater, Millennium City
Auswahl ändern
Anbieter

Anbieter
Marija Ivanov
teamneunzehn-GruppeTelefon
+43 676 852 2...

Anbieter kontaktieren