| CHARMANTE 3 ZIMMER-MAISONETTE-DACHGESCHOSSWOHNUNG MIT GALERIE | SONNIGER BALKON | CA. 80 m² | 4. OG | TEILWEISE SANIERUNGSBEDÜRFTIG | RUHIGER INNENHOF | IDEALE LAGE
8020 Graz, Griesplatz
























Objektinformation
Kosten
Kaufpreis€ 169.000
Betriebskosten (netto)€ 203,42
Provision
3% des Kaufpreises zzgl. 20% USt.
Vertragsart
, Kauf
Wohnfläche
80,07 m2 (3 Zimmer)
Freifläche
, Balkon
Objektart
Dachgeschosswohnung
Energie
HWB69,5 kWh/m²
HWB-KlasseC
fGEE1,55
fGEE-KlasseC
Energieausweis bis2032-04-27
Beschreibung
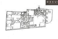
Zum Verkauf steht diese charmante 3-Zimmer-Maisonette-Dachgeschosswohnung mit Galerie und sonnigem Balkon, hell und gemütlich – ca. 80 m² im 4. OG.
Highlights:
* Helle und freundliche Raumgestaltung
* Gemütliches Ambiente mit sonnigem Balkon
* Kellerabteil für zusätzlichen Stauraum
* Sehr gute Anbindung
* Air BnB Vermietung möglich
Ausstattung:
* Vorraum
* 1 Wohnraum
* 2 Schlaf-/Zimmer
* Küche
* Flur
* Bad mit Dusche
* WC
* Galerie (ca. 20,25 m²)
* 2 Abstellräume
* Kellerabteil
Highlights:
* Helle und freundliche Raumgestaltung
* Gemütliches Ambiente mit sonnigem Balkon
* Kellerabteil für zusätzlichen Stauraum
* Sehr gute Anbindung
* Air BnB Vermietung möglich
Ausstattung:
* Vorraum
* 1 Wohnraum
* 2 Schlaf-/Zimmer
* Küche
* Flur
* Bad mit Dusche
* WC
* Galerie (ca. 20,25 m²)
* 2 Abstellräume
* Kellerabteil
Mehr
Weitere Preisinformationen
- Sonstige Kosten€ 113,60
Auswahl ändern
Anbieter

Anbieter
Katharina Hammerl
DECUS Immobilien GmbHTelefon
+43 660 688...

Anbieter kontaktieren