Zentrale Bürofläche mit 10 Zimmern und Stellplatz – ideal für Praxis oder Kanzlei
1040 Wien, Wieden
























10 Räume€ 2.652,22
Objektinformation
Kosten
Gesamtbelastung (netto)€ 2.652,22
Summe Miete (netto)€ 2.200,00
Betriebskosten (netto)€ 452,22
Provision
3 Bruttomonatsmieten zzgl. 20% USt.
Vertragsart
, Miete , unbefristet
Nutzfläche
keine Angabe
Bauart
Neubau
Beschreibung
ZENTRALE BÜROFLÄCHE MIT 10 ZIMMERN UND STELLPLATZ – IDEAL FÜR PRAXIS ODER KANZLEI
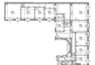
In ruhiger und dennoch zentraler Lage des 4. Wiener Gemeindebezirks gelangt eine vielseitig nutzbare Büro- bzw. Praxisfläche mit einer Nutzfläche von ca. 226 m² zur Vermietung. Die Einheit befindet sich im 2. Liftstock eines gepflegten Neubaus und überzeugt durch eine durchdachte Raumaufteilung mit insgesamt 10 Zimmern, 3 WCs, einem Abstellraum sowie großzügigen, flexibel nutzbaren Flächen.
Diese Immobilie eignet sich ideal für klassische Bürozwecke ebenso wie für medizinische oder therapeutische Ei..
In ruhiger und dennoch zentraler Lage des 4. Wiener Gemeindebezirks gelangt eine vielseitig nutzbare Büro- bzw. Praxisfläche mit einer Nutzfläche von ca. 226 m² zur Vermietung. Die Einheit befindet sich im 2. Liftstock eines gepflegten Neubaus und überzeugt durch eine durchdachte Raumaufteilung mit insgesamt 10 Zimmern, 3 WCs, einem Abstellraum sowie großzügigen, flexibel nutzbaren Flächen.
Diese Immobilie eignet sich ideal für klassische Bürozwecke ebenso wie für medizinische oder therapeutische Ei..
Mehr
Lage
U1 Taubstummengasse
Auswahl ändern
Anbieter

Anbieter
David Plishtiev
ADAMANT IMMOBILIEN GmbHTelefon
+43 664 46...

Anbieter kontaktieren