Großzügige, neu renovierte Büroflächen insgesamt 193,58 m² in repräsentativem Stilaltbau in Toplage des 1.Bezirks!
1010 Wien, Innere Stadt, Tegetthoffstraße






















€ 4.487,18
Objektinformation
Kosten
Gesamtbelastung (netto)€ 4.487,18
Gesamtmiete (netto)€ 4.293,60
Summe Miete (netto)€ 3.871,60
Betriebskosten (netto)€ 363,93
Provision
3 Bruttomonatsmieten zzgl. 20% USt.
Kautionshinweis
3 Bruttomonatsmieten
Vertragsart
, Miete , befristet
Nutzfläche
keine Angabe
Bauart
Altbau
Beschreibung
Großzügige Büroetage in repräsentativem Stilaltbau in Toplage des 1.Bezirks!
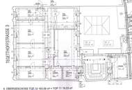
Zur langfristigen Vermietung gelangt eine neu renovierte 193,58 m² Bürofläche in unmittelbarer Nähe der Kärntnerstraße. Die weitgehend hellen Räume, der gediegene Altbaucharakter, sowie die zentrale Begehbarkeit aller Räume kombiniert mit der Infrastruktur der Kärntnerstraße zeichnen dieses Objekt besonders aus.
Raumaufteilung:
- Entree
- 6 Büroräume
- moderne Küche
- Abstellraum
- 2 Toiletten
Austattung:
Hauszentralheizung
Eichenparkettböden
Klimatisierung möglich
Für..
Zur langfristigen Vermietung gelangt eine neu renovierte 193,58 m² Bürofläche in unmittelbarer Nähe der Kärntnerstraße. Die weitgehend hellen Räume, der gediegene Altbaucharakter, sowie die zentrale Begehbarkeit aller Räume kombiniert mit der Infrastruktur der Kärntnerstraße zeichnen dieses Objekt besonders aus.
Raumaufteilung:
- Entree
- 6 Büroräume
- moderne Küche
- Abstellraum
- 2 Toiletten
Austattung:
Hauszentralheizung
Eichenparkettböden
Klimatisierung möglich
Für..
Mehr
Weitere Preisinformationen
- Heizkosten (netto)€ 193,58
- Sonstige Kosten€ 58,07
Auswahl ändern
Anbieter

Anbieter
Grazia Belmar
Ticon ImmobilienserviceTelefon
0699/10...

Anbieter kontaktieren