Neues Projekt in der Schwarzelackenau beim Marchfeldkanal - noch 18 Einheiten verfügbar!
1210 Wien, Floridsdorf



Objektinformation
Kosten
Kaufpreis€ 669.000
Kaufpreis / m²€ 6.133,11
Vertragsart
, Kauf
Wohnfläche
102,93 m2 (3 Zimmer)
Freifläche
, Terrasse
Bauart
Neubau
Energie
HWB37,3 kWh/m²
HWB-KlasseB
fGEE0,67
fGEE-KlasseA+
Beschreibung
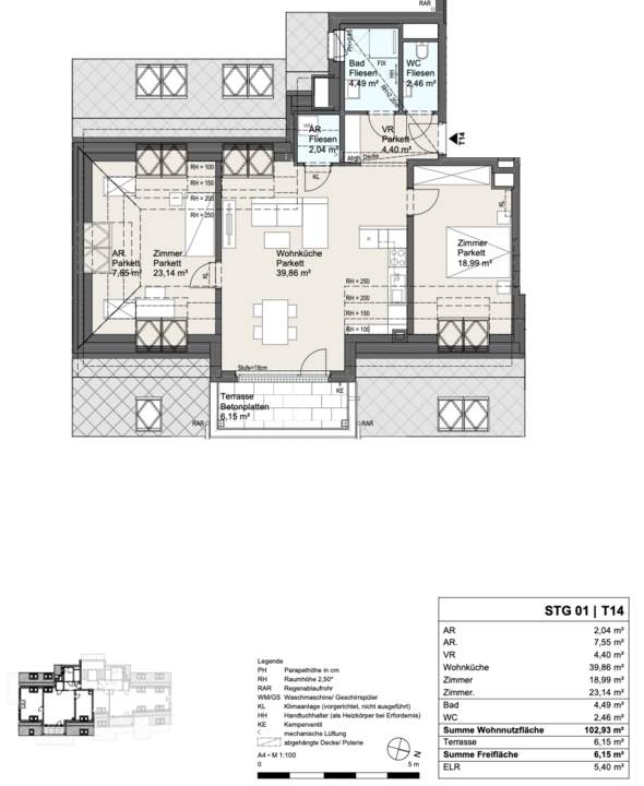
Top 14 | 3 Zimmer | ca. 103 m² + ca. 6 m² Freifläche
Die ca. 103 m² große Wohnung im 3. Liftstock bietet eine großzügige Wohnküche, 2 weitere Zimmer und eine ca. 6 m² große Terrasse. Die Räume sind hell, mit großflächigen Fensterflächen ausgestattet und vielseitig nutzbar.
Raumaufteilung:
- Abstellraum: ca. 7,55 m²
- Abstellraum: ca. 2,04 m²
- Vorraum: ca. 4,40 m²
- Wohnküche: ca. 39,86 m²
- Zimmer: ca. 23,14 m²
- Zimmer: ca. 18,99 m²
- WC: ca. 2,46 m²
- Bad: ca. 4,49 m² ..
Mehr
Lage
In der Nähe der großflächigen Grünzone der Schwarzlackenau entsteht ein exklusives Neubau-Wohnprojekt in ruhiger, naturnaher Umgebung
Dieses Projekt ist für alle, die Natur und Freizeit direkt vor der Haustür schätzen.
Naherholung am Wasser: Nur wenige Minuten bis zur Donauinsel, Neuen und Alten Donau – perfekte Bedingungen für Sport, Entspannung und Naturgenuss
Erholung & Freizeitsport: Schwimmen, Fischen, Segeln, Radfahren und Joggen – alles schnell erreichbar.
Nahversorger:
-Eurospar: ca. 750m
-Billa: ca. 800m
Öffentliche Verkehrsmittel:
-Bahnhof Wien Floridsdorf (U6, S1, S2, S3, S4, S7, Regionalzüge):
-Ist der wichtigste Verkehrsknotenpunkt im Bezirk. Mit den Buslinien 30A oder 31A erreicht man den Bahnhof in ca. 10–15 Minuten.
S-Bahn-Station Strebersdorf (S3, S4):
-Diese Station ist mit der Buslinie 32A gut erreichbar.
Dieses Projekt ist für alle, die Natur und Freizeit direkt vor der Haustür schätzen.
Naherholung am Wasser: Nur wenige Minuten bis zur Donauinsel, Neuen und Alten Donau – perfekte Bedingungen für Sport, Entspannung und Naturgenuss
Erholung & Freizeitsport: Schwimmen, Fischen, Segeln, Radfahren und Joggen – alles schnell erreichbar.
Nahversorger:
-Eurospar: ca. 750m
-Billa: ca. 800m
Öffentliche Verkehrsmittel:
-Bahnhof Wien Floridsdorf (U6, S1, S2, S3, S4, S7, Regionalzüge):
-Ist der wichtigste Verkehrsknotenpunkt im Bezirk. Mit den Buslinien 30A oder 31A erreicht man den Bahnhof in ca. 10–15 Minuten.
S-Bahn-Station Strebersdorf (S3, S4):
-Diese Station ist mit der Buslinie 32A gut erreichbar.
Auswahl ändern
Anbieter

Anbieter
Sebastian Scheuermann
INFINA Credit Broker GmbHTelefon
+43 676 4...

Anbieter kontaktieren