dibeo.at
dibeo.at

Neues Projekt in der Schwarzelackenau beim Marchfeldkanal - noch 18 Einheiten verfügbar!

1210 Wien, Donaustadt

Neues Projekt in der Schwarzelackenau beim Marchfeldkanal - noch 18 Einheiten verfügbar!Neues Projekt in der Schwarzelackenau beim Marchfeldkanal - noch 18 Einheiten verfügbar!

72,91 m²4 Zimmer€ 545.000

Finanzierung berechnen mit durchblicker
Zur Merkliste hinzufügen
Kosten
Kaufpreis€ 545.000
Kaufpreis / m²€ 6.243,56
Provision
19.620,00 € inkl. 20 % USt.
Vertragsart
, Kauf
Wohnfläche
72,91 m2 (4 Zimmer)
Freifläche
, Garten (112,42m²), Terrasse
Bauart
Neubau
Energie
HWB37,3 kWh/m²
HWB-KlasseB
fGEE0,67
fGEE-KlasseA+

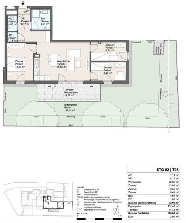
Stg. 2 Top 03 | 4 Zimmer | ca. 73m² + ca. 127m² Freifläche

Die ca. 73 m² große Wohnung bietet eine großzügige Wohnküche, 3 weitere Zimmer, eine ca. 14m² große Terrasse sowie einen ca. 112m² großen Eigengarten. Die Räume sind hell, mit großflächigen Fensterflächen ausgestattet und vielseitig nutzbar.

Raumaufteilung:

  • Vorraum: ca. 8,17 m²
  • Wohnküche: ca. 26,85 m²
  • Zimmer: ca. 13,05 m²
  • Zimmer: ca. 8,50 m²
  • Zimmer: ca. 8,44 m²
  • Abstellraum: ca. 1,14 m²
  • WC: ca. 1,85 m²
  • Bad: ca. 4,91..
Kontaktieren Sie bitte den Anbieter für weitere Details zur Adresse.
In der Nähe der großflächigen Grünzone der Schwarzlackenau entsteht ein exklusives Neubau-Wohnprojekt in ruhiger, naturnaher Umgebung
Dieses Projekt ist für alle, die Natur und Freizeit direkt vor der Haustür schätzen.

Naherholung am Wasser: Nur wenige Minuten bis zur Donauinsel, Neuen und Alten Donau – perfekte Bedingungen für Sport, Entspannung und Naturgenuss
Erholung & Freizeitsport: Schwimmen, Fischen, Segeln, Radfahren und Joggen – alles schnell erreichbar.

Nahversorger:
-Eurospar: ca. 750m
-Billa: ca. 800m

Öffentliche Verkehrsmittel:
-Bahnhof Wien Floridsdorf (U6, S1, S2, S3, S4, S7, Regionalzüge):
-Ist der wichtigste Verkehrsknotenpunkt im Bezirk. Mit den Buslinien 30A oder 31A erreicht man den Bahnhof in ca. 10–15 Minuten.

S-Bahn-Station Strebersdorf (S3, S4):
-Diese Station ist mit der Buslinie 32A gut erreichbar.
Zur Merkliste hinzufügen
Anbieter kontaktieren
Auswahl ändern
benjaminbornschein
Anbieter

Benjamin Bornschein

INFINA Credit Broker GmbH
Telefon
+43 664 4...
Anbieter kontaktieren
Bitte um Zusendung von Unterlagen!
Bitte um einen Besichtigungstermin!
Bitte um einen Rückruf unter …
anrufen