Neues Projekt in der Schwarzelackenau beim Marchfeldkanal - noch 18 Einheiten verfügbar!
1210 Wien, Donaustadt, Wolsteingasse



Objektinformation
Kosten
Kaufpreis€ 430.000
Kaufpreis / m²€ 5.678,82
Provision
15.480,00 € inkl. 20 % USt.
Vertragsart
, Kauf
Wohnfläche
64,6 m2 (3 Zimmer)
Freifläche
, Balkon
Bauart
Neubau
Energie
HWB37,3 kWh/m²
HWB-KlasseB
fGEE0,67
fGEE-KlasseA+
Beschreibung
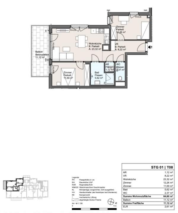
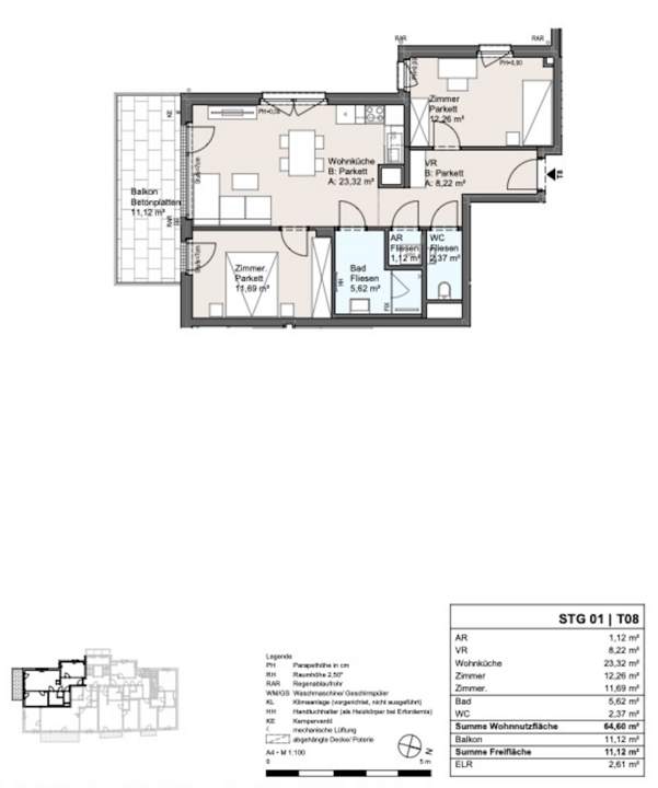
Top 08 | 3 Zimmer | ca. 61m² + ca. 11 m² Freifläche
Die ca. 61 m² große Wohnung befindet sich im 1. Liftstock und verfügt über eine offene Wohnküche, zwei weitere Zimmer und einen ca. 11 m² großen Balkon. Beide Zimmer sind zentral von der Wohnküche aus zugänglich, mit großflächigen Fenstern ausgestattet und vielseitig nutzbar.
Raumaufteilung:
- Abstellraum: ca. 1,12 m²
- Vorraum: ca. 8,22 m²
- Wohnküche: ca. 23,32 m²
- Zimmer: ca. 12,26 m²
- Zimmer: ca. 11,69 m²
- Bad: ca. 5,62 m²
Mehr
Lage
In der Nähe der großflächigen Grünzone der Schwarzlackenau entsteht ein exklusives Neubau-Wohnprojekt in ruhiger, naturnaher Umgebung
Dieses Projekt ist für alle, die Natur und Freizeit direkt vor der Haustür schätzen.
Naherholung am Wasser: Nur wenige Minuten bis zur Donauinsel, Neuen und Alten Donau – perfekte Bedingungen für Sport, Entspannung und Naturgenuss
Erholung & Freizeitsport: Schwimmen, Fischen, Segeln, Radfahren und Joggen – alles schnell erreichbar.
Nahversorger:
-Eurospar: ca. 750m
-Billa: ca. 800m
Öffentliche Verkehrsmittel:
-Bahnhof Wien Floridsdorf (U6, S1, S2, S3, S4, S7, Regionalzüge):
-Ist der wichtigste Verkehrsknotenpunkt im Bezirk. Mit den Buslinien 30A oder 31A erreicht man den Bahnhof in ca. 10–15 Minuten.
S-Bahn-Station Strebersdorf (S3, S4):
-Diese Station ist mit der Buslinie 32A gut erreichbar.
Dieses Projekt ist für alle, die Natur und Freizeit direkt vor der Haustür schätzen.
Naherholung am Wasser: Nur wenige Minuten bis zur Donauinsel, Neuen und Alten Donau – perfekte Bedingungen für Sport, Entspannung und Naturgenuss
Erholung & Freizeitsport: Schwimmen, Fischen, Segeln, Radfahren und Joggen – alles schnell erreichbar.
Nahversorger:
-Eurospar: ca. 750m
-Billa: ca. 800m
Öffentliche Verkehrsmittel:
-Bahnhof Wien Floridsdorf (U6, S1, S2, S3, S4, S7, Regionalzüge):
-Ist der wichtigste Verkehrsknotenpunkt im Bezirk. Mit den Buslinien 30A oder 31A erreicht man den Bahnhof in ca. 10–15 Minuten.
S-Bahn-Station Strebersdorf (S3, S4):
-Diese Station ist mit der Buslinie 32A gut erreichbar.
Auswahl ändern
Anbieter

Anbieter
Benjamin Bornschein
INFINA Credit Broker GmbHTelefon
+43 664 4...

Anbieter kontaktieren