Wohn- und Geschäftshaus mit Nebengebäuden und Garten im Ortszentrum von Maria Anzbach
3034 Maria-Anzbach













410 m²8 Räume€ 550.000
Objektinformation
Kosten
Kaufpreis€ 550.000
Provision
3% des Kaufpreises zzgl. 20% USt.
Vertragsart
, Kauf
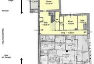
Nutzfläche
410 m2 (8 Zimmer)
Grundstück
1.720 m2
Freifläche
, Loggia
Bauart
Altbau: 1900
Energie
HWB218 kWh/m²
HWB-KlasseF
fGEE2,43
fGEE-KlasseD
Energieausweis bis2033-10-05
Beschreibung
Die Liegenschaft befindet sich im Zentrum von Maria Anzbach, unmittelbar südlich dem Gemeindeamt.
Die ersten Mauern des Wohn- und Geschäftsgebäudes wurden wahrscheinlich bereits Anfang 1900 errichtet, Jahre später wurde das Erdgeschoß vergrößert und im vorderen Teil ein Geschäftslokal eingerichtet. 1965 erfolgte die Aufstockung um eine Wohnung im 1. Stock, im vorderen Teil war dann ein Adeg untergebracht. Im Jahre 1986 schließlich zog nach einigen Umbauten eine Filiale der österr. Post in das straßenseitige Erdgeschoß ein, derzeit ist dort, jederzeit kündbar, ein Sozialer Verein eingemi..
Die ersten Mauern des Wohn- und Geschäftsgebäudes wurden wahrscheinlich bereits Anfang 1900 errichtet, Jahre später wurde das Erdgeschoß vergrößert und im vorderen Teil ein Geschäftslokal eingerichtet. 1965 erfolgte die Aufstockung um eine Wohnung im 1. Stock, im vorderen Teil war dann ein Adeg untergebracht. Im Jahre 1986 schließlich zog nach einigen Umbauten eine Filiale der österr. Post in das straßenseitige Erdgeschoß ein, derzeit ist dort, jederzeit kündbar, ein Sozialer Verein eingemi..
Mehr
Auswahl ändern
Anbieter

Anbieter
Karin Hanika
Rudi Dräxler Immobilientreuhand GesmbHTelefon
+43 664 39...

Anbieter kontaktieren