Erstbezug nach Sanierung: Moderne Stadtwohnung in zentraler Lage in Graz: 65 m² - 2 Zimmer - große Wohnküche & Eigengarten! Gleich anfragen und Besichtigungstermin vereinbaren! PROVISIONSFREI!
8020 Graz




















Objektinformation
Kosten
Kaufpreis€ 249.000
Betriebskosten (netto)€ 161,46
Provision
Provision bezahlt der Abgeber.
Vertragsart
, Kauf
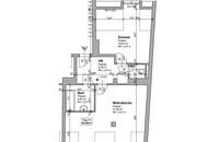
Wohnfläche
64,98 m2 (2 Zimmer)
Freifläche
, Garten (72m²)
Bauart
Altbau
Energie
HWB86 kWh/m²
HWB-KlasseC
fGEE1,36
fGEE-KlasseC
Energieausweis bis2024-01-30
Verfügbar
ab sofort
Beschreibung
ERSTBEZUG NACH SANIERUNG: MODERNE STADTWOHNUNG IN ZENTRALER LAGE IN GRAZ:
65 M² - 2 ZIMMER - GROSSE WOHNKÜCHE & EIGENGARTEN! GLEICH ANFRAGEN UND BESICHTIGUNGSTERMIN VEREINBAREN!
PROVISIONSFREI!
Hier geht's zum 360°-Rundgang [https://my.matterport.com/show/?m=MyK84RAGHHz]
(Achtung! Hier wurde eine Wohnung mit Küche zur Veranschaulichung verwendet!)
Herzlich willkommen in Ihrem neuen Zuhause!
Diese Dachgeschosswohnung überzeugt durch einen durchdachten Grundriss, der sowohl stilvolle Ästhetik als auch hohen Wohnkomfort und A..
65 M² - 2 ZIMMER - GROSSE WOHNKÜCHE & EIGENGARTEN! GLEICH ANFRAGEN UND BESICHTIGUNGSTERMIN VEREINBAREN!
PROVISIONSFREI!
Hier geht's zum 360°-Rundgang [https://my.matterport.com/show/?m=MyK84RAGHHz]
(Achtung! Hier wurde eine Wohnung mit Küche zur Veranschaulichung verwendet!)
Herzlich willkommen in Ihrem neuen Zuhause!
Diese Dachgeschosswohnung überzeugt durch einen durchdachten Grundriss, der sowohl stilvolle Ästhetik als auch hohen Wohnkomfort und A..
Mehr
Weitere Preisinformationen
- Heizkosten (netto)€ 53,28
- Sonstige Kosten€ 13,80
Lage
Die charmante Immobilie befindet sich in einer begehrten und aufstrebenden Wohngegend von Graz. Die Strauchergasse zeichnet sich durch ihre zentrale Lage aus, die eine erstklassige Anbindung an öffentliche Verkehrsmittel, Geschäfte und Freizeiteinrichtungen bietet. Die Nachbarschaft präsentiert sich als lebendiges und freundliches Umfeld, das sowohl für Familien als auch für Berufstätige attraktiv ist. In unmittelbarer Nähe finden sich zahlreiche Einkaufsmöglichkeiten, Restaurants und Cafés, die eine hohe Lebensqualität gewährleisten. Die Straße selbst strahlt Ruhe aus und bietet den Bewohnern eine angenehme Atmosphäre zum Entspannen. Gleichzeitig sind die vielfältigen kulturellen Angebote und Freizeitmöglichkeiten der Stadt leicht erreichbar. Die Infrastruktur ist ausgezeichnet, mit guten Verbindungen zu öffentlichen Verkehrsmitteln, Schulen und medizinischen Einrichtungen. Die grünen Parkanlagen in der Umgebung laden zu Spaziergängen und sportlichen Aktivitäten ein, wodurch ein ausgewogenes Verhältnis zwischen städtischem Leben und naturnahem Erholen entsteht. Zusammenfassend lässt sich sagen, dass dies eine äußerst attraktive Adresse in Graz ist, die ein komfortables und lebendiges Wohnen in einem urbanen Umfeld ermöglicht.
Auswahl ändern
Anbieter

Anbieter
Christopher Wischenbart, BSc
Schantl ITH Immobilientreuhand GmbHTelefon
+43 664 2...

Anbieter kontaktieren
Downloads zum Objekt
Virtuelle Besichtigung