JUWEL! Wohnoase mit großem Privatgarten in Graz-Liebenau – großzügig, grün & ideal für Familien!
8041 Graz


















Objektinformation
Kosten
Kaufpreis€ 584.800
Provision
Provision bezahlt der Abgeber.
Vertragsart
, Kauf
Wohnfläche
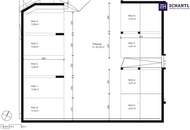
112,34 m2 (5 Zimmer)
Freifläche
, Garten (299,83m²), Terrasse (2)
Bauart
Neubau: 2026
Energie
HWB34,4 kWh/m²
HWB-KlasseB
fGEE0,72
fGEE-KlasseA
Energieausweis bis2031-11-15
Beschreibung
JUWEL! WOHNOASE MIT GROSSEM PRIVATGARTEN IN GRAZ-LIEBENAU – GROSSZÜGIG, GRÜN & IDEAL FÜR FAMILIEN!
Diese exklusive Erdgeschosswohnung in moderner, hochwertiger Ausführung überzeugt durch eine durchdachte Raumaufteilung, zwei weitläufige Terrassen sowie einen beeindruckenden Privatgarten mit knapp 300 m² Fläche. Sie ist ideal für Familien, Paare oder naturverbundene Stadtmenschen, die Raum, Komfort und Freiraum in bester Lage vereinen möchten.
5 ÜBERZEUGENDE FAKTEN:
*
112 m² Wohnfläche mit großzügigem, durchdachtem Grundriss
*
Zwei Terrassen mit 38,34 m..
Diese exklusive Erdgeschosswohnung in moderner, hochwertiger Ausführung überzeugt durch eine durchdachte Raumaufteilung, zwei weitläufige Terrassen sowie einen beeindruckenden Privatgarten mit knapp 300 m² Fläche. Sie ist ideal für Familien, Paare oder naturverbundene Stadtmenschen, die Raum, Komfort und Freiraum in bester Lage vereinen möchten.
5 ÜBERZEUGENDE FAKTEN:
*
112 m² Wohnfläche mit großzügigem, durchdachtem Grundriss
*
Zwei Terrassen mit 38,34 m..
Mehr
Weitere Preisinformationen
- Sonstige Preisangabenzzgl. 2 TG-Plätze zu je € 27.500,--
Lage
Das Projekt „Wohnen im Park“ befindet sich in einer angenehmen Wohngegend im Süden von Graz. Die Umgebung bietet eine ideale Kombination aus urbaner Infrastruktur und ruhigem, grünem Wohnumfeld. Einkaufsmöglichkeiten, Schulen, Kindergärten, Ärzte und Freizeiteinrichtungen sind in wenigen Minuten erreichbar. Auch die Anbindung an den öffentlichen Verkehr sowie an das Grazer Straßennetz ist hervorragend – die Innenstadt ist schnell und bequem erreichbar.
Durch die Nähe zu Naherholungsgebieten und Radwegen eignet sich die Lage auch ideal für naturverbundene Menschen und Familien.
Durch die Nähe zu Naherholungsgebieten und Radwegen eignet sich die Lage auch ideal für naturverbundene Menschen und Familien.
Auswahl ändern
Anbieter

Anbieter
Nikolaus Kronabitter
Schantl ITH Immobilientreuhand GmbHTelefon
+43 664 2...

Anbieter kontaktieren