Wohnen nahe der Donau in der Rudolfstraße 39 - Top R2-4
4040 Linz











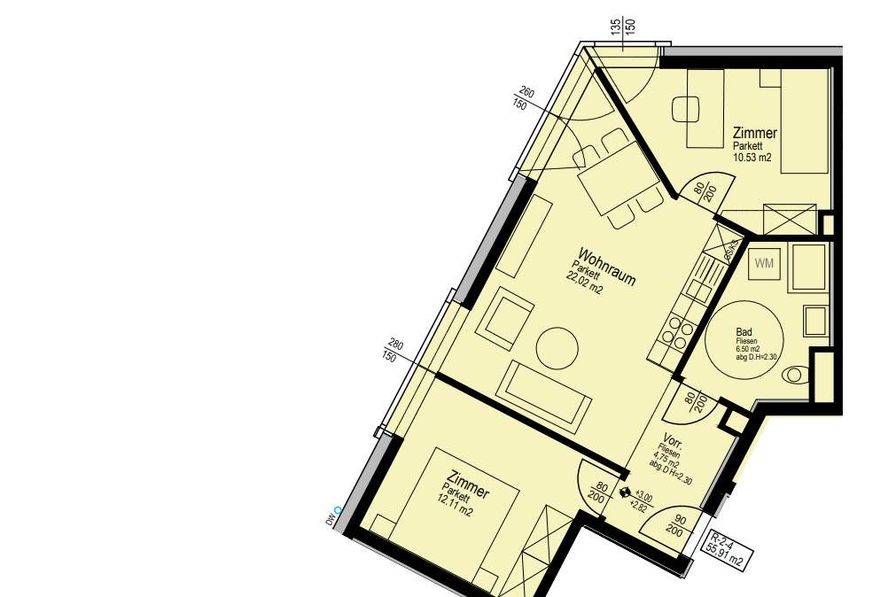
55,91 m²3,5 Zimmer€ 794,34
Objektinformation
Kosten
Gesamtbelastung (brutto)€ 794,34
Gesamtbelastung (netto)€ 718,22
Summe Miete (netto)€ 500,00
Betriebskosten (netto)€ 218,22
Kautionshinweis
€ 2.385,00
Vertragsart
, Miete , unbefristet
Wohnfläche
55,91 m2 (3.5 Zimmer)
Objektart
Etagenwohnung
Beschreibung
Diese gepflegte 3-Zimmer-Wohnung in der Rudolfstraße 39, 4040 Linz, bietet ein ideales Zuhause für Paare, Familien oder anspruchsvolle Singles. Die Wohnung überzeugt durch ihre durchdachte Raumaufteilung, helle Wohnräume und ihre attraktive Lage im beliebten Stadtteil Urfahr.
Der großzügige Wohnbereich bildet den Mittelpunkt der Wohnung und lädt zum Entspannen und Verweilen ein. Große Fenster sorgen für eine angenehme Lichtdurchflutung und ein freundliches Wohnambiente. Zwei weitere Zimmer bieten vielseitige Nutzungsmöglichkeiten – als Schlafzimmer, Kinderzimmer, Homeoffice oder Gästezi..
Der großzügige Wohnbereich bildet den Mittelpunkt der Wohnung und lädt zum Entspannen und Verweilen ein. Große Fenster sorgen für eine angenehme Lichtdurchflutung und ein freundliches Wohnambiente. Zwei weitere Zimmer bieten vielseitige Nutzungsmöglichkeiten – als Schlafzimmer, Kinderzimmer, Homeoffice oder Gästezi..
Mehr
Auswahl ändern
Anbieter

Anbieter
Lara Gerard
ARL Immo GmbHTelefon
+43 664 6...

Anbieter kontaktieren
Virtuelle Besichtigung