Historischer Charme trifft zeitlose Eleganz: 240 m², 9 Zimmer, naturnahe Lage südwestlich von Wien
2531 Gaaden





























































Objektinformation
Kosten
Kaufpreis€ 998.000
Betriebskosten (netto)€ 62,15
Provision
35.928,00 € inkl. 20% USt.
Vertragsart
, Kauf
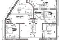
Wohnfläche
237,52 m2 (9 Zimmer)
Grundstück
425,68 m2
Freifläche
, Garten (225m²), Terrasse
Energie
HWB28 kWh/m²
HWB-KlasseB
fGEE0,85
fGEE-KlasseB
Energieausweis bis2026-02-16
Verfügbar
ab sofort
Beschreibung
Dieses außergewöhnliche Einfamilienhaus, auf einem Grundstück von ca. 426m², ursprünglich im Jahr 1860 als ehemalige Pferdeschmiede erbaut und in den Jahren 2018-2019 kernsaniert, bietet auf der großzügigen Wohnfläche von ca. 240m², auf 4 Ebenen mit 9 Zimmern, perfekte Raumgestaltung und ein einzigartiges Wohnambiente.
Die Immobilie, mit der hochwertigen Fassade, lässt kaum Rückschlüsse auf das zu, was dem Besucher nach Betreten des Hauses erwartet und sich in idyllischer und naturnaher Lage südwestlich von Wien befindet und absolut ruhig und dennoch gut angebunden ist.
Bereits ..
Die Immobilie, mit der hochwertigen Fassade, lässt kaum Rückschlüsse auf das zu, was dem Besucher nach Betreten des Hauses erwartet und sich in idyllischer und naturnaher Lage südwestlich von Wien befindet und absolut ruhig und dennoch gut angebunden ist.
Bereits ..
Mehr
Auswahl ändern
Anbieter

Anbieter
Anita Hofmann
Bieber Immobilien GmbHTelefon
+43 664 40 ...

Anbieter kontaktieren