Exklusives Wohnen in ruhiger City Randlage – Ameisgasse 28
1140 Wien, Penzing, Ameisgasse



































Objektinformation
Kosten
Kaufpreis€ 495.300
Provision
Provisionsfrei
Vertragsart
, Kauf
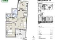
Wohnfläche
64,07 m2 (3 Zimmer)
Freifläche
, Balkon, Loggia
Bauart
Neubau: 2024
Energie
HWB42 kWh/m²
HWB-KlasseB
fGEE0,64
fGEE-KlasseB
Beschreibung
Urban & Grün – Exklusive Eigentumswohnungen in Penzing
Im südöstlichen Teil des 14. Wiener Gemeindebezirks Penzing entsteht mit Ameisgasse 28 ein Wohnprojekt, das urbanes Lebensgefühl und naturnahe Lebensqualität auf höchstem Niveau vereint. In einer verkehrsberuhigten, neu gestalteten Straße genießen Sie hier Ruhe, Komfort und eine hervorragende Infrastruktur direkt vor der Haustür. Der Bahnhof Wien-Penzing, die U4‑Stationen Braunschweiggasse und Hietzing sowie Straßenbahn‑ und Buslinien sind fußläufig erreichbar – das Stadtzentrum ist binnen rund 30 Minuten erreichbar. Für Erholun..
Im südöstlichen Teil des 14. Wiener Gemeindebezirks Penzing entsteht mit Ameisgasse 28 ein Wohnprojekt, das urbanes Lebensgefühl und naturnahe Lebensqualität auf höchstem Niveau vereint. In einer verkehrsberuhigten, neu gestalteten Straße genießen Sie hier Ruhe, Komfort und eine hervorragende Infrastruktur direkt vor der Haustür. Der Bahnhof Wien-Penzing, die U4‑Stationen Braunschweiggasse und Hietzing sowie Straßenbahn‑ und Buslinien sind fußläufig erreichbar – das Stadtzentrum ist binnen rund 30 Minuten erreichbar. Für Erholun..
Mehr
Lage
Tiergarten Schönbrunn, Linzer Straße, Bahnhof Penzing, U4 - Hietzing
Auswahl ändern
Anbieter

Anbieter
Silva Baghramian
teamneunzehn-GruppeTelefon
+43 676 852 2...

Anbieter kontaktieren
Virtuelle Besichtigung