Klein, fein und voller Möglichkeiten - 3 Zimmer mit Zukunft!
1170 Wien, Hernals, Beheimgasse




















Objektinformation
Kosten
Kaufpreis€ 324.000
Kaufpreis / m²€ 3.916,35
Provision
3%
Vertragsart
, Kauf
Wohnfläche
82,73 m2 (3 Zimmer)
Objektart
Erdgeschosswohnung
Bauart
Altbau: 1900
Energie
HWB103,2 kWh/m²
HWB-KlasseD
fGEE1,07
fGEE-KlasseC
Beschreibung
In attraktiver Lage des 17. Bezirks gelangen in der Beheimgasse mehrere Wohnungen zum Einzelabverkauf. Das Angebot umfasst überwiegend unbefristet und befristet vermietete sowie einige leerstehende Einheiten mit Wohnflächen von ca. 25 m² bis 112 m²; Dachgeschosswohnungen verfügen über Freiflächen.
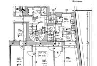
Die ca. 83 m² große 3-Zimmer-Wohnung (Vorraum, Küche, 3 Zimmer, Schrankraum, Badezimmer und Toilette) befindet sich im Erdgeschoss eines gepflegten Gründerzeithauses, das 2008 saniert und ausgebaut wurde und ist noch bis 14.09.2026 befristet vermi..
Die ca. 83 m² große 3-Zimmer-Wohnung (Vorraum, Küche, 3 Zimmer, Schrankraum, Badezimmer und Toilette) befindet sich im Erdgeschoss eines gepflegten Gründerzeithauses, das 2008 saniert und ausgebaut wurde und ist noch bis 14.09.2026 befristet vermi..
Mehr
Auswahl ändern
Anbieter

Anbieter
Ruschitzka-Schilhorn Marion
IMV Makler GmbH
Anbieter kontaktieren