Geräumiges Einfamilienhaus mit Villencharakter in schöner Grünruhelage
1220 Wien, Donaustadt








































Objektinformation
Kosten
Kaufpreis€ 840.000
Provision
3% des Kaufpreises zzgl. 20% USt.
Vertragsart
, Kauf
Wohnfläche
154 m2
Grundstück
503 m2
Freifläche
, Terrasse
Bauart
Neubau
Beschreibung
In schöner Grünruhelage Nähe Stadlau und Hirschstetten gelangt ein charmantes ca. 154m² Einfamilienhaus mit südostseitiger Terrasse, Garage (ca. 19,8 m²) und ebenen Garten mit Altbaumbestand zum Verkauf.
Das Objekt ist südostseitig ausgerichtet und in Ziegelmassiv-Bauweise auf ca. 72m² Vollkeller errichtet. Die letzte Generalsanierung fand 1992 statt (Fassadendämmung, Dachbodendämmung, Fenster, Garage, Terrasse, Innenausstattung). Das Haus wurde 1956/57 errichtet und Anfang der 1970iger Jahre auf seine heutige Größe erweitert.
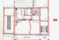
AUFTEILUNG
EG: Eingangsbereich mit..
Das Objekt ist südostseitig ausgerichtet und in Ziegelmassiv-Bauweise auf ca. 72m² Vollkeller errichtet. Die letzte Generalsanierung fand 1992 statt (Fassadendämmung, Dachbodendämmung, Fenster, Garage, Terrasse, Innenausstattung). Das Haus wurde 1956/57 errichtet und Anfang der 1970iger Jahre auf seine heutige Größe erweitert.
AUFTEILUNG
EG: Eingangsbereich mit..
Mehr
Lage
Stadlau/Hirschstetten/U2 Aspernstraße
Zusatzinformationen
Eingangsbereich
Auswahl ändern
Anbieter

Anbieter
FHI - Real Estate
FHI Real Estate GmbHTelefon
+43 1 342 ...

Anbieter kontaktieren