** Tolle 2-Zimmer-Wohnung direkt am Stadtplatz 6 - Top 6
4600 Wels
top ad










48,87 m²2 Zimmer€ 813,74
Objektinformation
Kosten
Gesamtbelastung (brutto)€ 813,74
Gesamtbelastung (netto)€ 728,14
Gesamtmiete (brutto)€ 660,34
Gesamtmiete (netto)€ 600,31
Summe Miete (netto)€ 439,83
Betriebskosten (netto)€ 160,48
Provision
Gemäß Erstauftraggeberprinzip bezahlt der Abgeber die Provision.
Kautionshinweis
1.982,00 €
Vertragsart
, Miete , befristet
Wohnfläche
48,87 m2 (2 Zimmer)
Bauart
Altbau
Energie
HWB109,2 kWh/m²
HWB-KlasseD
fGEE1,78
fGEE-KlasseD
Energieausweis bis2031-10-05
Verfügbar
ab sofort
Beschreibung
Diese sonnige 2-Zimmer-Wohnung befindet sich im 3. Obergeschoss, ohne Lift. Das Objekt ist mit hellen Parkettböden und einer ablösefreien Küche ausgestattet. Die großen Fenster lassen viel Tageslicht in die Wohnung und ermöglichen einen tollen Blick auf das Welser Innenstadtleben!
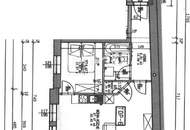
Raumaufteilung: Vorraum, Abstellraum, Bad/WC, Wohnküche, Schlafzimmer.
***Die Anmeldung des Hauptwohnsitzes ist erforderlich.
Wir weisen darauf hin, dass zwischen dem Vermittler und dem zu vermittelnden Dritten ein familiäres oder wirtschaftliches Naheverhältnis besteht.
Der Immobilienmakl..
Raumaufteilung: Vorraum, Abstellraum, Bad/WC, Wohnküche, Schlafzimmer.
***Die Anmeldung des Hauptwohnsitzes ist erforderlich.
Wir weisen darauf hin, dass zwischen dem Vermittler und dem zu vermittelnden Dritten ein familiäres oder wirtschaftliches Naheverhältnis besteht.
Der Immobilienmakl..
Mehr
Weitere Preisinformationen
- Heizkosten (netto)€ 127,83
Lage
Direkt am Welser Stadtplatz
Auswahl ändern
Anbieter

Anbieter
Klaus Egger
IMMOcontract Immobilien Vermittlung GmbHTelefon
+43 676 841 4...

Anbieter kontaktieren