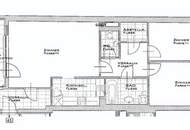
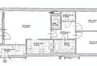
HOLBEINGASSE, UNBEFRISTET, 89 m2 Altbau mit 6 m2 Balkon, Wohnküche, 2 Zimmer, Wannenbad, Parketten, 4. Liftstock
1100 Wien, Favoriten, Holbeingasse



























3 Zimmer€ 1.211,37
Objektinformation
Kosten
Gesamtbelastung (brutto)€ 1.211,37
Gesamtbelastung (netto)€ 1.101,24
Summe Miete (netto)€ 873,82
Betriebskosten (netto)€ 210,06
Provision
Gemäß Erstauftraggeberprinzip bezahlt der Abgeber die Provision.
Kautionshinweis
€ 3.640,00
Vertragsart
, Miete
Wohnfläche
keine Angabe
Objektart
Etagenwohnung
Bauart
Altbau
Energie
HWB39,95 kWh/m²
HWB-KlasseB
fGEE1,01
fGEE-KlasseC
Verfügbar
ab sofort
Beschreibung
IN DER HOLBEINGASSE GELANGT DIESE 86,80 M2 ALTBAUWOHNUNG MIT 6,17 M2 BALKON IM 4. LIFTSTOCK ZUR UNBEFRISTETEN VERMIETUNG!
VORZIMMER, WOHN-ESSZIMMER MIT KOCHNISCHE, BALKON, 2 ZIMMER, BADEZIMMER, SEPARATES WC, ABSTELLRAUM UND KELLERABTEIL
AUSSTATTUNG:
+ CA. 6,17 M2 BALKON (WESTLICH)
+ KÜCHE MIT EINBAUGERÄTE
+ BADEZIMMER MIT BADEWANNE, WASCHTISCH UND WASCHMASCHINENANSCHLUSS
+ SEPARATES WC MIT WASCHBECKEN
+ GERÄUMIGER ABSTELLRAUM
+ PARKETTBÖDEN, FLIESEN IN DEN NASSRÄUMEN
+ TELEKABELFERNSEHANSCHLUSS, GEGENSPRECHANLAGE
+ HOLZ-ALU-FENSTER
+ KELLERABTE..
VORZIMMER, WOHN-ESSZIMMER MIT KOCHNISCHE, BALKON, 2 ZIMMER, BADEZIMMER, SEPARATES WC, ABSTELLRAUM UND KELLERABTEIL
AUSSTATTUNG:
+ CA. 6,17 M2 BALKON (WESTLICH)
+ KÜCHE MIT EINBAUGERÄTE
+ BADEZIMMER MIT BADEWANNE, WASCHTISCH UND WASCHMASCHINENANSCHLUSS
+ SEPARATES WC MIT WASCHBECKEN
+ GERÄUMIGER ABSTELLRAUM
+ PARKETTBÖDEN, FLIESEN IN DEN NASSRÄUMEN
+ TELEKABELFERNSEHANSCHLUSS, GEGENSPRECHANLAGE
+ HOLZ-ALU-FENSTER
+ KELLERABTE..
Mehr
Weitere Preisinformationen
- Sonstige Kosten€ 17,36
Lage
HOLBEINGASSE - ECKE TROSTSTRASSE mit bester Infrastruktur des 10. Bezirks (Troststraße, Gudrunstraße, Bernhardtstalgasse, Hardtmuthgasse, Quellenstraße, Amalienbad, Laaer Berg) sowie perfekten Verkehrsverbindungen wie die U1-Station Troststraße, die Linien O, BB, 1, 6, 18, 11, 7A, 15A, 65A, 66A, N6, N65 sowie sämtliche Schnellbahnlinien und Fernzüge sind in unmittelbarer Nähe. Die Autobahnen A2, A1, S1, A4 erreichen Sie in wenigen Minuten.
Zusatzinformationen
ES WERDEN VORÜBERGEHEND DIE FOTOS EINER SCHNITTLGLEICHEN WOHNUNG IM HAUS ANGEZEIGT!
Auswahl ändern
Anbieter

Anbieter
Alexander Ros
ROS REALITÄTEN OGTelefon
+43 664 466...

Anbieter kontaktieren