Wohnen im Weinparadies – Exklusive Gartenwohnung mit Panoramablick in Sankt Bartholomä
8113 Sankt Bartholomä, Reiteregg


































Objektinformation
Kosten
Kaufpreis€ 449.000
Betriebskosten (netto)€ 130,00
Provision
3% des Kaufpreises zzgl. 20% USt.
Vertragsart
, Kauf
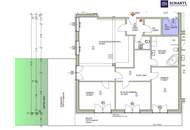
Wohnfläche
129,22 m2 (4 Zimmer)
Freifläche
, Balkon, Garten (100m²), Terrasse
Bauart
Altbau: 1979
Energie
HWB27,7 kWh/m²
HWB-KlasseB
fGEE0,71
fGEE-KlasseA
Verfügbar
ab sofort
Beschreibung
WOHNEN IM WEINPARADIES – EXKLUSIVE GARTENWOHNUNG MIT PANORAMABLICK IN SANKT BARTHOLOMÄ
Das klingt nach einer beeindruckenden Wohngelegenheit! Eine moderne 4-Zimmer-Wohnung mitten in den Weinbergen der Weststeiermark, im malerischen Vulkanland, kombiniert den Genuss des Weinanbaus mit luxuriösem Wohnen. Besonders faszinierend ist die Lage in einem neu renovierten, futuristischen Gebäude, das Teil eines revitalisierten Weinguts ist. Das Gebäude scheint nicht nur Wohnraum zu bieten, sondern auch Ferienwohnungen und ein gehobenes Sterne-Restaurant, was die Attraktivität zusätz..
Das klingt nach einer beeindruckenden Wohngelegenheit! Eine moderne 4-Zimmer-Wohnung mitten in den Weinbergen der Weststeiermark, im malerischen Vulkanland, kombiniert den Genuss des Weinanbaus mit luxuriösem Wohnen. Besonders faszinierend ist die Lage in einem neu renovierten, futuristischen Gebäude, das Teil eines revitalisierten Weinguts ist. Das Gebäude scheint nicht nur Wohnraum zu bieten, sondern auch Ferienwohnungen und ein gehobenes Sterne-Restaurant, was die Attraktivität zusätz..
Mehr
Weitere Preisinformationen
- Sonstige Preisangaben2 PP sind im KP inkludiert!
- Heizkosten (netto)€ 135,00
Lage
Die Gemeinde Sankt Bartholomä liegt auf einer Seehöhe von 499 Metern in der Weststeiermark im westlichen Teil des Bezirkes Graz-Umgebung, an der Grenze zum Bezirk Voitsberg. Die Entfernung zur steirischen Landeshauptstadt Graz beträgt etwa 15 km. In Sankt Bartholomä befindet sich eine Volksschule und die Gemeinde besitzt eine gute öffentliche Verkehrsverbindung und Infrastruktur, Apotheke und Supermärkte sind ebenfalls in wenigen Fahrminuten erreichbar.
Zusatzinformationen
http://www.schantl-ith.at
Auswahl ändern
Anbieter

Anbieter
Ursula Seiwald
Schantl ITH Immobilientreuhand GmbHTelefon
+43 664 5...

Anbieter kontaktieren
Downloads zum Objekt