Möglichkeit zur Zusammenlegung im Altbau mit Eigengarten! Zwischen Rochusmarkt und Kardinal Nagl- Platz!
1030 Wien, Landstraße, Hainburger Straße







































Objektinformation
Kosten
Kaufpreis€ 908.000
Provision
3% des Kaufpreises zzgl. 20% USt.
Vertragsart
, Kauf
Wohnfläche
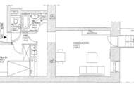
120,88 m2 (5 Zimmer)
Freifläche
, Garten (87m²)
Bauart
Altbau: 1911
Energie
HWB111,1 kWh/m²
HWB-KlasseD
fGEE1,88
fGEE-KlasseD
Energieausweis bis2033-08-20
Beschreibung
Die vor kurzem zu neuem Glanz erweckte "Hainburg" stellt eine architektonische Besonderheit in Bezug auf die schmiedeeiserne und frei schwebende Treppenkonstruktion dar. Das Dachgeschoß wurde bereits ausgebaut und ein Personenlift errichtet. Erleben Sie diese fantastische Konzeption hautnah!
Ein Meisterwerk des Altbaus, der momentan mehrere Wohnungen zum Kauf offeriert. Von Gartenwohnungen über das erste bis zum zweiten Obergeschoß, mit 1 bis 5 Zimmern. Auch Zusammenlegungen sind möglich. Die Wohneinheiten werden mit Fernwärme beheizt und sind mit Holzkastenfenstern und P..
Ein Meisterwerk des Altbaus, der momentan mehrere Wohnungen zum Kauf offeriert. Von Gartenwohnungen über das erste bis zum zweiten Obergeschoß, mit 1 bis 5 Zimmern. Auch Zusammenlegungen sind möglich. Die Wohneinheiten werden mit Fernwärme beheizt und sind mit Holzkastenfenstern und P..
Mehr
Lage
Die wunderschön begrünte Allee "Hainburger Straße", eingebettet zwischen Rochusmarkt und Kardinal Nagl-Platz, ist ausgesprochen beliebt: Hier erreichen Sie sowohl die Wiener Innenstadt, den Bahnhof Wien-Mitte mit dem schicken Einkaufszentrum „The Mall“, als auch für alle Sportlichen die grüne Lunge Wiens, den Prater, in nur wenigen Gehminuten.
Mit den Fernverbindungen sind Flughafen und Autobahn schnell zu erreichen. Bequem bringt Sie der City Airport Train in 16 Min. vom Verkehrsknoten Wien-Mitte zum Flughafen Wien. Sie erreichen fußläufig die Geschäfte des täglichen Bedarfs in der Landstraßer Hauptstraße. Mit der U3 - nur 80m vom Haus entfernt - ist man in 5 Minuten am Stephansplatz oder mit dem PKW in 5 Minuten auf der Autobahn. Auch die gastronomische Kurve ist im Steigen begriffen, zahlreiche neue Lokale haben aufgesperrt und eines der besten Fischlokale Wiens befindet sich gleich um die Ecke!
Der dritte Bezirk gilt generell als einer der ruhigeren und sicheren Bezirke in Wien. Der gesamte Bereich Hainburger Straße/Keinergasse ist eine verkehrsberuhigte Zone, es besteht daher kein Durchzugsverkehr - lediglich Anrainer-Parken. Man befindet sich für Großstadtverhältnisse nahezu in einer “Ruheoase”.
Mit den Fernverbindungen sind Flughafen und Autobahn schnell zu erreichen. Bequem bringt Sie der City Airport Train in 16 Min. vom Verkehrsknoten Wien-Mitte zum Flughafen Wien. Sie erreichen fußläufig die Geschäfte des täglichen Bedarfs in der Landstraßer Hauptstraße. Mit der U3 - nur 80m vom Haus entfernt - ist man in 5 Minuten am Stephansplatz oder mit dem PKW in 5 Minuten auf der Autobahn. Auch die gastronomische Kurve ist im Steigen begriffen, zahlreiche neue Lokale haben aufgesperrt und eines der besten Fischlokale Wiens befindet sich gleich um die Ecke!
Der dritte Bezirk gilt generell als einer der ruhigeren und sicheren Bezirke in Wien. Der gesamte Bereich Hainburger Straße/Keinergasse ist eine verkehrsberuhigte Zone, es besteht daher kein Durchzugsverkehr - lediglich Anrainer-Parken. Man befindet sich für Großstadtverhältnisse nahezu in einer “Ruheoase”.
Auswahl ändern
Anbieter

Anbieter
Patrick Winkler
WINEGG Makler GmbHTelefon
+43 6608...

Anbieter kontaktieren