Moderne Dachgeschoß-Garconniere in ruhiger Lage Nähe U4-Unter St. Veit!
1130 Wien, Hietzing








27 m²1 Zimmer€ 487,00
Objektinformation
Kosten
Gesamtbelastung (brutto)€ 487,00
Gesamtbelastung (netto)€ 442,73
Summe Miete (netto)€ 377,49
Betriebskosten (netto)€ 65,24
Kautionshinweis
2.000 Bruttomonatsmieten
Vertragsart
, Miete
Wohnfläche
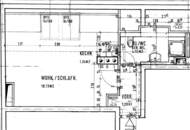
27 m2 (1 Zimmer)
Objektart
Dachgeschosswohnung
Bauart
Neubau
Energie
HWB67,16 kWh/m²
HWB-KlasseC
Verfügbar
ab sofort
Beschreibung
Helle, gepflegte Garcionerre im Dachgeschoß (4.OG ohne Lift) eines kleinen familiären Wohnhauses mit Garten-Mitbenützung, 5 Gehminuten von der U 4 Unter St. Veit entfernt. Gut geeignet für Pendler und Menschen die regelmäßig in Wien übernachten und dabei die Privatsphäre der eigenen Wohnung einem Hotelzimmer vorziehen.
Die Wohnung besteht aus einem Vorraum, dem Duschbad mit WC und dem Wohn-/Schlafzimmer mit Kochnische. Zur guten Ausstattung gehören u.a. eine Hauszentralheizung inkl. WW-Versorgung (zuzüglich ca. 65,-/Mon. HK/WW-Akto.), Thermo-Isolierglasfenster, Parkettboden, eine ausges..
Die Wohnung besteht aus einem Vorraum, dem Duschbad mit WC und dem Wohn-/Schlafzimmer mit Kochnische. Zur guten Ausstattung gehören u.a. eine Hauszentralheizung inkl. WW-Versorgung (zuzüglich ca. 65,-/Mon. HK/WW-Akto.), Thermo-Isolierglasfenster, Parkettboden, eine ausges..
Mehr
Lage
Nähe U4 Unter ST. Veit - zwischen Auhofstraße und Hietzinger Hauptstraße
Auswahl ändern
Anbieter

Anbieter
Günter Deimel
ERA RES Real Estate ServicesTelefon
+43 681 / 106 ...

Anbieter kontaktieren