Wohnen im Grünen - Exklusive Neubauwohnung in Graz-Mariatrost mit modernem Komfort und idyllischer Aussicht!
8044 Graz, Mariatroster Straße































Objektinformation
Kosten
Kaufpreis€ 749.000
Vertragsart
, Kauf
Wohnfläche
108 m2 (4 Zimmer)
Freifläche
, Terrasse
Bauart
Neubau
Energie
HWB43,11 kWh/m²
HWB-KlasseB
fGEE0,79
fGEE-KlasseA
Beschreibung
Wohnen im Grünen - Exklusive Neubauwohnung in Graz-Mariatrost mit modernem Komfort und idyllischer Aussicht!
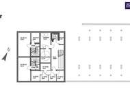
Fakten zur Top 5:
* WFL von 107,9m² im 2.OG und SW Ausrichtung
* 4 Zimmer
* 3 Schlafzimmer mit (14,3m², 11,3m², 11,4m²)
* WO/ESS/KO auf 43m² und der anschließenden Terrasse mit 21,8m²
* Vorräume gesamt mit 13m²
* Badezimmer 1, mit Badewanne und WC auf 5,3m²
* Badezimmer 2, mit Dusche, WC und Fenster
* Abstellraum mit 2m²
* Speis mit 2,7m² &nbs..
Fakten zur Top 5:
* WFL von 107,9m² im 2.OG und SW Ausrichtung
* 4 Zimmer
* 3 Schlafzimmer mit (14,3m², 11,3m², 11,4m²)
* WO/ESS/KO auf 43m² und der anschließenden Terrasse mit 21,8m²
* Vorräume gesamt mit 13m²
* Badezimmer 1, mit Badewanne und WC auf 5,3m²
* Badezimmer 2, mit Dusche, WC und Fenster
* Abstellraum mit 2m²
* Speis mit 2,7m² &nbs..
Mehr
Weitere Preisinformationen
- Sonstige PreisangabenKP ist BRUTTO ohne der TG!
Lage
Die Wohnung in der Maria Troster-Straße 146 befindet sich in einer der begehrtesten Wohngegenden von Graz, dem Stadtteil Mariatrost. Die Lage bietet eine perfekte Kombination aus ruhigem, naturnahem Wohnen und schneller Anbindung an das Stadtzentrum.
Mariatrost ist bekannt für seine grüne Umgebung und den hohen Freizeitwert. Die Lage ist ideal für Natur- und Sportliebhaber: Zahlreiche Wanderwege und der beliebte Leechwald sind in der Nähe, ebenso wie der Grazer Hausberg, der Schöckl, der zahlreiche Outdoor-Aktivitäten ermöglicht. Die Basilika Mariatrost, ein bedeutendes Wahrzeichen von Graz, ist ebenfalls nur wenige Minuten entfernt und verleiht dem Stadtteil seinen besonderen Charme.
In der unmittelbaren Umgebung befinden sich diverse Einkaufsmöglichkeiten, wie Supermärkte, Apotheken und Bäckereien, die den täglichen Bedarf decken. Die Nahversorgung wird ergänzt durch kleine Cafés und Restaurants, die zum Verweilen einladen. Außerdem gibt es Kindergärten, Schulen und Sporteinrichtungen in der Nähe, was die Lage besonders für Familien attraktiv macht.
Die Anbindung an den öffentlichen Nahverkehr ist hervorragend: Die Straßenbahnlinie 1 sowie mehrere Buslinien sind schnell erreichbar und bieten eine bequeme Verbindung ins Zentrum von Graz. Die Maria Troster Straße selbst ist gut an das Straßennetz angeschlossen, was eine schnelle Fahrt in die Innenstadt oder zu weiteren Ausflugszielen rund um Graz ermöglicht.
Die Maria Troster Straße 146 ist eine ideale Adresse für alle, die eine ruhige und grüne Wohnlage suchen, ohne auf die Annehmlichkeiten des städtischen Lebens verzichten zu müssen. Die Mischung aus urbanem Komfort und Naturnähe macht diese Lage besonders attraktiv und lebenswert.
Mariatrost ist bekannt für seine grüne Umgebung und den hohen Freizeitwert. Die Lage ist ideal für Natur- und Sportliebhaber: Zahlreiche Wanderwege und der beliebte Leechwald sind in der Nähe, ebenso wie der Grazer Hausberg, der Schöckl, der zahlreiche Outdoor-Aktivitäten ermöglicht. Die Basilika Mariatrost, ein bedeutendes Wahrzeichen von Graz, ist ebenfalls nur wenige Minuten entfernt und verleiht dem Stadtteil seinen besonderen Charme.
In der unmittelbaren Umgebung befinden sich diverse Einkaufsmöglichkeiten, wie Supermärkte, Apotheken und Bäckereien, die den täglichen Bedarf decken. Die Nahversorgung wird ergänzt durch kleine Cafés und Restaurants, die zum Verweilen einladen. Außerdem gibt es Kindergärten, Schulen und Sporteinrichtungen in der Nähe, was die Lage besonders für Familien attraktiv macht.
Die Anbindung an den öffentlichen Nahverkehr ist hervorragend: Die Straßenbahnlinie 1 sowie mehrere Buslinien sind schnell erreichbar und bieten eine bequeme Verbindung ins Zentrum von Graz. Die Maria Troster Straße selbst ist gut an das Straßennetz angeschlossen, was eine schnelle Fahrt in die Innenstadt oder zu weiteren Ausflugszielen rund um Graz ermöglicht.
Die Maria Troster Straße 146 ist eine ideale Adresse für alle, die eine ruhige und grüne Wohnlage suchen, ohne auf die Annehmlichkeiten des städtischen Lebens verzichten zu müssen. Die Mischung aus urbanem Komfort und Naturnähe macht diese Lage besonders attraktiv und lebenswert.
Auswahl ändern
Anbieter

Anbieter
Ursula Seiwald
Schantl ITH Immobilientreuhand GmbHTelefon
+43 664 5...

Anbieter kontaktieren