dibeo.at
dibeo.at

„PARK LIFE“ – Stilvoll wohnen im generalsanierten Altbau im 18. Bezirk

1180 Wien, Währing

„PARK LIFE“ – Stilvoll wohnen im generalsanierten Altbau im 18. Bezirk„PARK LIFE“ – Stilvoll wohnen im generalsanierten Altbau im 18. Bezirk„PARK LIFE“ – Stilvoll wohnen im generalsanierten Altbau im 18. Bezirk„PARK LIFE“ – Stilvoll wohnen im generalsanierten Altbau im 18. Bezirk

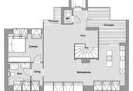
104 m²2 Zimmer€ 1.099.000

Finanzierung berechnen mit durchblicker
Zur Merkliste hinzufügen
Kosten
Kaufpreis€ 1.099.000
Provision
3% des Kaufpreises zzgl. 20% USt.
Vertragsart
, Kauf
Wohnfläche
104 m2 (2 Zimmer)
Freifläche
, Terrasse (2)
Objektart
Dachgeschosswohnung
Bauart
Altbau: 1900
Im exklusiven Altbauprojekt „PARK LIFE“ entstehen zehn hochwertig ausgestattete Eigentumswohnungen in ruhiger Wohnlage mit ausgezeichneter Infrastruktur. Das stilvolle Jahrhundertwendehaus wird umfassend modernisiert und technisch auf den neuesten Stand gebracht – inklusive Lift, Balkonen bzw. Terrassen und energieeffizienter Haustechnik.

Die Nähe zum Marie-Ebner-Eschenbach-Park sowie zum Kutschkermarkt bietet ein Wohnumfeld mit hoher Lebensqualität, urbanem Flair und hohem Erholungswert. Cafés, Restaurants und Nahversorger befinden sich in unmittelbarer Umgebung.
Kontaktieren Sie bitte den Anbieter für weitere Details zur Adresse.
Zur Merkliste hinzufügen
Anbieter kontaktieren
Auswahl ändern
null
Anbieter

Antonia Page

Georg Fresacher-The Real Estate-Immobilienmakler GmbH
Telefon
+43676 6...
Anbieter kontaktieren
Bitte um Zusendung von Unterlagen!
Bitte um einen Besichtigungstermin!
Bitte um einen Rückruf unter …
anrufen