Investieren mit Weitblick - unbefristet vermietet zum Preis von € 1.400,-/m²
1140 Wien, Penzing, Pachmanngasse



















Objektinformation
Kosten
Kaufpreis€ 148.000
Kaufpreis / m²€ 1.413,83
Provision
3%
Vertragsart
, Kauf
Wohnfläche
104,68 m2 (4 Zimmer)
Objektart
Erdgeschosswohnung
Bauart
Altbau: 1913
Energie
HWB184,2 kWh/m²
HWB-KlasseE
fGEE3,17
fGEE-KlasseE
Beschreibung
Solide Anlagechance – unbefristet vermietete Altbauwohnung im 14. Bezirk!
Diese unbefristet vermietete Immobilie in der gut gelegenen Pachmanngasse bietet eine interessante Möglichkeit zur langfristigen Kapitalanlage in einem klassischen Wiener Gründerzeithaus.
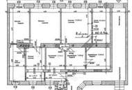
Die rund 105 m² große Wohnung befindet sich im Erdgeschoss und überzeugt durch eine großzügige Raumaufteilung.
Die Details:
- Wohnungseigentumsobjekt
- 4 Zimmer, 1 Badezimmer, 2 Abstellräume
- Beheizung mittels Gasetagenheizung
- Unbefristet<..
Diese unbefristet vermietete Immobilie in der gut gelegenen Pachmanngasse bietet eine interessante Möglichkeit zur langfristigen Kapitalanlage in einem klassischen Wiener Gründerzeithaus.
Die rund 105 m² große Wohnung befindet sich im Erdgeschoss und überzeugt durch eine großzügige Raumaufteilung.
Die Details:
- Wohnungseigentumsobjekt
- 4 Zimmer, 1 Badezimmer, 2 Abstellräume
- Beheizung mittels Gasetagenheizung
- Unbefristet<..
Mehr
Auswahl ändern
Anbieter kontaktieren

