Tolle 2-Zimmer-Balkonwohnung in der Nähe der Ungargasse – mit guter Verkehrsanbindung!
1030 Wien, Landstraße, Rennweg












43,69 m²2 Zimmer€ 895,69
Objektinformation
Kosten
Gesamtbelastung (brutto)€ 895,69
Gesamtbelastung (netto)€ 814,26
Summe Miete (netto)€ 694,28
Miete / m²€ 15,89
Betriebskosten (netto)€ 119,98
Kautionshinweis
€ 2.850,00
Vertragsart
, Miete , befristet
Wohnfläche
43,69 m2 (2 Zimmer)
Freifläche
, Balkon
Bauart
Neubau: 2006
Energie
HWB45,2 kWh/m²
HWB-KlasseB
fGEE1,85
fGEE-KlasseD
Beschreibung
Zur Anmietung nach Absprache steht diese schöne 2-Zimmer-Wohnung mit Balkon im 3. Bezirk am Rennweg 57, für Sie bereit.
Bitte beachten Sie, dass die Wohnung derzeit noch bewohnt ist und es sich bei den Bildern um Archivfotos handelt.
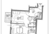
Die ca. 44 m² große Wohnung befindet sich im 4. Obergeschoss eines gepflegten Neubaus und gliedert sich in einen Vorraum, eine Wohnraum mit Küchennische und Zutritt zum Balkon, ein Schlafzimmer, ein Badezimmer und eine separate Toilette.
Einige Highlights:<..
Mehr
Weitere Preisinformationen
- Sonstige PreisangabenAbwicklung und Durchführung Mietvertrag: € 375,-
- Hauptmietzins (netto)€ 694,28
Auswahl ändern
Anbieter kontaktieren

