Das schönste Dach Wiens gehört Ihnen – Exquisite Eleganz im exklusiven Penthouse des 1. Bezirks – 3D-Tour ansehen!
1010 Wien, Innere Stadt, Schellinggasse











































































































Objektinformation
Kosten
Kaufpreis€ 15.900.000
Provision
3% des Kaufpreises zzgl. 20% USt.
Vertragsart
, Kauf
Wohnfläche
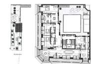
362,51 m2 (6 Zimmer)
Freifläche
, Terrasse (2)
Objektart
Penthouse
Bauart
Altbau
Energie
HWB33,83 kWh/m²
HWB-KlasseB
fGEE0,9
fGEE-KlasseB
Verfügbar
ab sofort
Beschreibung
DAS SCHÖNSTE DACH WIENS GEHÖRT IHNEN – EXQUISITE ELEGANZ IM EXKLUSIVEN PENTHOUSE DES 1. BEZIRKS – 3D-TOUR ANSEHEN!
ERLEBEN SIE WOHNEN AUF HÖCHSTEM NIVEAU – IHR EXKLUSIVES PENTHOUSE IN DER SCHELLINGGASSE 12, 1010 WIEN
Willkommen in einer Residenz, die neue Maßstäbe für luxuriöses Wohnen setzt.
Dieses einzigartige Penthouse im exklusiven 1. Wiener Bezirk vereint beeindruckende Architektur, herausragende Ausstattung und höchsten Wohnkomfort auf einer Wohnfläche von 362 m². Ein privater Aufzug führt Sie direkt in Ihr neues Zuhause, wo Sie ein großzügiger Grundriss, l..
ERLEBEN SIE WOHNEN AUF HÖCHSTEM NIVEAU – IHR EXKLUSIVES PENTHOUSE IN DER SCHELLINGGASSE 12, 1010 WIEN
Willkommen in einer Residenz, die neue Maßstäbe für luxuriöses Wohnen setzt.
Dieses einzigartige Penthouse im exklusiven 1. Wiener Bezirk vereint beeindruckende Architektur, herausragende Ausstattung und höchsten Wohnkomfort auf einer Wohnfläche von 362 m². Ein privater Aufzug führt Sie direkt in Ihr neues Zuhause, wo Sie ein großzügiger Grundriss, l..
Mehr
Lage
Das luxuriöse Penthouse befindet sich in der renommierten Schellinggasse 12, im Herzen des 1. Wiener Bezirks. Diese exklusive Adresse vereint urbanen Charme mit absoluter Privatsphäre und bietet ein Wohngefühl der Extraklasse – in einer der begehrtesten Lagen Wiens. Weltberühmte Sehenswürdigkeiten wie die Wiener Staatsoper, der Stephansdom oder die Kärntner Straße liegen nur wenige Schritte entfernt und laden zu erstklassigem Shopping, exquisiter Kulinarik und kulturellen Highlights ein. Die luxuriöse Atmosphäre der Umgebung wird durch die Nähe zu renommierten Boutiquen, eleganten Cafés sowie den grünen Oasen des Burggartens und Stadtparks zusätzlich unterstrichen. Dank der hervorragenden Infrastruktur und optimalen Verkehrsanbindung erreichen Sie alle Teile der Stadt mühelos – ob mit öffentlichen Verkehrsmitteln, dem Auto oder zu Fuß. Die Schellinggasse vereint eine ruhige, charmante Atmosphäre mit der pulsierenden Energie der Wiener Innenstadt – die perfekte Lage für anspruchsvolle Stadtliebhaber, die das Besondere suchen.
Auswahl ändern
Anbieter

Anbieter
Ursula Seiwald
Schantl ITH Immobilientreuhand GmbHTelefon
+43 664 5...

Anbieter kontaktieren
Downloads zum Objekt
Virtuelle Besichtigung