Historische Altbauvilla trifft auf modernen Luxus – Ihre private Residenz an der Leitha!
2485 Wimpassing an der Leitha
































































Objektinformation
Kosten
Kaufpreis€ 1.290.000
Provision
3% des Kaufpreises zzgl. 20% USt
Vertragsart
, Kauf
Wohnfläche
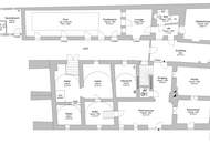
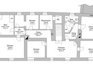
331,17 m2 (9 Zimmer)
Grundstück
3.721 m2
Freifläche
, Terrasse
Energie
HWB118 kWh/m²
HWB-KlasseD
fGEE1,4
fGEE-KlasseC
Energieausweis bis2035-01-14
Beschreibung
Historische Altbauvilla trifft auf modernen Luxus – Ihre private Residenz an der Leitha!
Dieses beeindruckende Haus aus dem Jahr 1725 (geschätzt) bietet die seltene Gelegenheit, eine Liegenschaft mit Geschichte und exzellenter Ausstattung zu erwerben.
Auf einem großzügigen Grundstück von 3.721 m² erstreckt sich diese prächtige Immobilie, welche 2015 kernsaniert wurde, mit einer Wohnfläche von 331 m² und einer Nutzfläche von 581 m². Mit insgesamt 9 Zimmern, darunter 6 Schlafzimmer und 3 Badezimmer, bietet dieses Haus mehr als genug Platz für die ganze Familie.
Es verfügt..
Dieses beeindruckende Haus aus dem Jahr 1725 (geschätzt) bietet die seltene Gelegenheit, eine Liegenschaft mit Geschichte und exzellenter Ausstattung zu erwerben.
Auf einem großzügigen Grundstück von 3.721 m² erstreckt sich diese prächtige Immobilie, welche 2015 kernsaniert wurde, mit einer Wohnfläche von 331 m² und einer Nutzfläche von 581 m². Mit insgesamt 9 Zimmern, darunter 6 Schlafzimmer und 3 Badezimmer, bietet dieses Haus mehr als genug Platz für die ganze Familie.
Es verfügt..
Mehr
Lage
Das charmante Haus befindet sich in der Gemeinde Wimpassing an der Leitha im Burgenland, direkt an der Grenze zu Niederösterreich. Die Lage bietet eine perfekte Mischung aus Ruhe und guter Anbindung, ideal für Familien und Pendler.
Die umliegende Region ist bekannt für ihre Weingüter und bietet zahlreiche Freizeitmöglichkeiten in der Natur. In der Nähe befinden sich alle wichtigen Einrichtungen des täglichen Bedarfs wie Einkaufsmöglichkeiten, Schulen und medizinische Versorgung.
Die gute Verkehrsanbindung ermöglicht es, die umliegenden Städte schnell und bequem zu erreichen. In nur 15 Minuten ist man vom Bahnhof Ebreichsdorf am Bahnhof Wien Meidling.
Entfernung zur Wiener Stadtgrenze 26 km
Entfernung zur SCS 30 km
Diese Immobilie bietet eine hervorragende Wohnatmosphäre in einem charmanten und gut erschlossenen Umfeld.
Die umliegende Region ist bekannt für ihre Weingüter und bietet zahlreiche Freizeitmöglichkeiten in der Natur. In der Nähe befinden sich alle wichtigen Einrichtungen des täglichen Bedarfs wie Einkaufsmöglichkeiten, Schulen und medizinische Versorgung.
Die gute Verkehrsanbindung ermöglicht es, die umliegenden Städte schnell und bequem zu erreichen. In nur 15 Minuten ist man vom Bahnhof Ebreichsdorf am Bahnhof Wien Meidling.
Entfernung zur Wiener Stadtgrenze 26 km
Entfernung zur SCS 30 km
Diese Immobilie bietet eine hervorragende Wohnatmosphäre in einem charmanten und gut erschlossenen Umfeld.
Ausstattung
Heizung und Warmwasser:
+ Fußbodenheizung, teilweise Wandheizung, teilweise Heizkörper
+ Gastherme
+ Heizkessel Holz von Fröhling
+ Wärmepumpe für Warmwasser mit 1000L Speicher
Fenster und Beschattung:
+ Kunststoff-Fenster 3- Fachverglasung, erhöhte Schalldämmung straßenseitig und OG-Fenster mit Kindersicherung
+ Sonnenschutz mit automatischen Raffstores, Zentral- und Einzelsteuerung
Indoor Swimmingpool:
+ Maße: 10m x 2,6m x 1,5m
+ Wärmepumpe
+ vollautomatischer Filteranlage
+ automatische Wassernachfüllung
+ elektrische Poolabdeckung
+ Poolroboter
+ Poolhaus mit Wetterfühler, Entfeuchtungsanlage, Fussbodenheizung, Klimaanlage
+ Anschlüsse für Sauna und Dampfkabine
Sonstiges:
+ Brunnenschacht: Wasserpumpe mit automatischen Betrieb, 8 Wasserentnahmestellen, Brunnenwassersteuerung im Sommer für Pool, Waschmaschine und Outdoortoilette
+ elektrischer Türöffner mit Video Funktion und 2 Inneneinheiten EG+OG
+ Aufwändige Außenbeleuchtung
+ Swarovski – Beleuchtungskörper
+ Weinpresse im Gewölbekeller
+ Satellitenanlage
+ Obstgarten mit 33 verschiedenen Obstsorten (im Alter von 4 - 15 Jahre)
+ Fußbodenheizung, teilweise Wandheizung, teilweise Heizkörper
+ Gastherme
+ Heizkessel Holz von Fröhling
+ Wärmepumpe für Warmwasser mit 1000L Speicher
Fenster und Beschattung:
+ Kunststoff-Fenster 3- Fachverglasung, erhöhte Schalldämmung straßenseitig und OG-Fenster mit Kindersicherung
+ Sonnenschutz mit automatischen Raffstores, Zentral- und Einzelsteuerung
Indoor Swimmingpool:
+ Maße: 10m x 2,6m x 1,5m
+ Wärmepumpe
+ vollautomatischer Filteranlage
+ automatische Wassernachfüllung
+ elektrische Poolabdeckung
+ Poolroboter
+ Poolhaus mit Wetterfühler, Entfeuchtungsanlage, Fussbodenheizung, Klimaanlage
+ Anschlüsse für Sauna und Dampfkabine
Sonstiges:
+ Brunnenschacht: Wasserpumpe mit automatischen Betrieb, 8 Wasserentnahmestellen, Brunnenwassersteuerung im Sommer für Pool, Waschmaschine und Outdoortoilette
+ elektrischer Türöffner mit Video Funktion und 2 Inneneinheiten EG+OG
+ Aufwändige Außenbeleuchtung
+ Swarovski – Beleuchtungskörper
+ Weinpresse im Gewölbekeller
+ Satellitenanlage
+ Obstgarten mit 33 verschiedenen Obstsorten (im Alter von 4 - 15 Jahre)
Zusatzinformationen
Der Vermittler ist als Doppelmakler tätig.
Wir weisen darauf hin, dass zwischen dem Vermittler und dem Auftraggeber ein wirtschaftliches Naheverhältnis besteht.
„Ihr Weg zum besten Immobilienkredit – vergleichen, sparen, finanzieren." Jetzt anfragen bei unserem Finanzierungspartner Alexander Schulze unter +43 699 17260427 oder alexander.schulze@investnest.at.
Auswahl ändern
Anbieter

Anbieter
Laura Reiter
Friends Immobilien GmbHTelefon
00436643...

Anbieter kontaktieren