PROVISIONSFREI & BEZUGSFERTIG - GEFÖRDERTES REIHENHAUS MIT KAUFOPTION
2842 Edlitz





















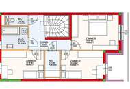
110 m²4 Zimmer€ 1.124,73
Objektinformation
Kosten
Gesamtbelastung (brutto)€ 1.124,73
Vertragsart
, Miete , unbefristet
Wohnfläche
110 m2 (4 Zimmer)
Freifläche
, Loggia, Terrasse
Energie
HWB35,8 kWh/m²
HWB-KlasseB
fGEE0,43
fGEE-KlasseA++
Beschreibung
CHARMANTES REIHENHAUS MIT TERRASSE & GARTEN
BESCHREIBUNG: In 2842 Edlitz wurde 2024 von der NÖ Bau- und Siedlungsgenossenschaft eine Wohnhausanlage mit 24 Wohnungen, aufgeteilt auf zwei Stiegen und sechs Reihenhäusern, in Miete mit Kaufrecht errichtet.
Die Wohnungen und Reihenhäuser wurden in Niedrigenergiebauweise mit kontrollierter Wohnraumlüftung und Wärmerückgewinnung hergestellt. Die Beheizung und Warmwasserbereitung erfolgt mittels Luft-Wasser-Wärmepumpen in Zusammenhang mit Photovoltaikanlagen.
Den Erdgeschosswohnungen und Reihenhäusern sind Eigengärten samt Te..
BESCHREIBUNG: In 2842 Edlitz wurde 2024 von der NÖ Bau- und Siedlungsgenossenschaft eine Wohnhausanlage mit 24 Wohnungen, aufgeteilt auf zwei Stiegen und sechs Reihenhäusern, in Miete mit Kaufrecht errichtet.
Die Wohnungen und Reihenhäuser wurden in Niedrigenergiebauweise mit kontrollierter Wohnraumlüftung und Wärmerückgewinnung hergestellt. Die Beheizung und Warmwasserbereitung erfolgt mittels Luft-Wasser-Wärmepumpen in Zusammenhang mit Photovoltaikanlagen.
Den Erdgeschosswohnungen und Reihenhäusern sind Eigengärten samt Te..
Mehr
Auswahl ändern
Anbieter

Anbieter
Sibylle Grün
Immobilien Mörtl GmbHTelefon
+43 664 3...

Anbieter kontaktieren