Hofseitige 2-Zimmer Wohnung mit Balkon in der Wielandgasse
1100 Wien, Favoriten
top ad











55,4 m²2 Zimmer€ 850,30
Objektinformation
Kosten
Gesamtbelastung (brutto)€ 850,30
Gesamtbelastung (netto)€ 773,00
Summe Miete (netto)€ 651,50
Betriebskosten (netto)€ 121,50
Provision
Gemäß Erstauftraggeberprinzip bezahlt der Abgeber die Provision.
Kautionshinweis
3 Bruttomonatsmieten
Vertragsart
, Miete , unbefristet
Wohnfläche
55,4 m2 (2 Zimmer)
Freifläche
, Balkon
Energie
HWB35,2 kWh/m²
HWB-KlasseB
fGEE1,12
fGEE-KlasseC
Energieausweis bis2030-05-19
Beschreibung
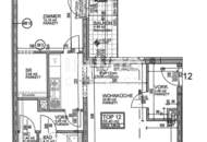
Diese nette, helle 2-Zimmer-Wohnung befindet sich im 3.Liftstock und bietet eine ruhige, hofseitige Lage.
Sie bietet Vorraum, Wohnküche, einen zweiten Vorraum zu Bad und WC, ein Schlafzimmer und einen Balkon , der sowohl vom Schlafzimmer als auch von der Wohnküche aus begehbar ist. Geheizt wird mit Fernwärme.
Ein Kellerabteil ist zur Wohnung zugeordnet.
In der hauseigenen Garage gibt es Stellplätze um 95€ monatlich zu mieten.
Bitte senden Sie ausschließlich schriftliche Anfragen.
Sie erhalten dann einen Besichtigungstermin!
Der Immobilienmakler e..
Sie bietet Vorraum, Wohnküche, einen zweiten Vorraum zu Bad und WC, ein Schlafzimmer und einen Balkon , der sowohl vom Schlafzimmer als auch von der Wohnküche aus begehbar ist. Geheizt wird mit Fernwärme.
Ein Kellerabteil ist zur Wohnung zugeordnet.
In der hauseigenen Garage gibt es Stellplätze um 95€ monatlich zu mieten.
Bitte senden Sie ausschließlich schriftliche Anfragen.
Sie erhalten dann einen Besichtigungstermin!
Der Immobilienmakler e..
Mehr
Lage
Wielandgasse 5 , sehr nahe zum Keplermarkt zur Fußgängerzone Favoritenstraße und zur U1 Keplerplatz oder Reumannplatz
Auswahl ändern
Anbieter

Anbieter
Martina Abiodun-Regenfelder
IMMOcontract Immobilien Vermittlung GmbHTelefon
+43 676 841 4...

Anbieter kontaktieren