ATTRAKTIVES BAURECHT IM ORTSZENTRUM VON MARIAZELL
8630 Mariazell, Morzingasse
























































2.114 m²€ 3.180,00
Objektinformation
Kosten
Gesamtbelastung (brutto)€ 3.180,00
Gesamtbelastung (netto)€ 2.650,00
Miete / m²€ 1,25
Kautionshinweis
€ 12,00, 40.000,- €
Vertragsart
, Miete , befristet
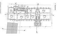
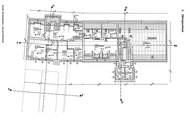
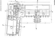
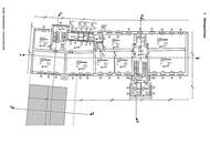
Nutzfläche
2.114 m2
Grundstück
1.569 m2
Freifläche
, Garten (689m²)
Energie
HWB208 kWh/m²
HWB-KlasseF
fGEE1,68
fGEE-KlasseC
Energieausweis bis2024-03-02
Beschreibung
ZWEI ATTRAKTIVE BAURECHTSLIEGENSCHAFTEN MIT LANGFRISTIGER PLANUNGSSICHERHEIT
NACHHALTIG INVESTIEREN – LIQUIDITÄT SCHONEN – WERTE SICHERN
Zum Verkauf gelangen zwei ehemalige Schulgebäude mit über 2.100 m² Nutzfläche in attraktiver Lage, welche im Rahmen eines Baurechts über 99 Jahre vergeben werden. Dieses Modell eröffnet Investoren und institutionellen Nutzern die Möglichkeit, langfristig gesicherte Immobiliennutzung mit optimiertem Kapitaleinsatz zu verbinden und zwei großzügige Bestandsimmobilien neu zu entwickeln.
DAS BAURECHT – IHR STRATEGIS..
NACHHALTIG INVESTIEREN – LIQUIDITÄT SCHONEN – WERTE SICHERN
Zum Verkauf gelangen zwei ehemalige Schulgebäude mit über 2.100 m² Nutzfläche in attraktiver Lage, welche im Rahmen eines Baurechts über 99 Jahre vergeben werden. Dieses Modell eröffnet Investoren und institutionellen Nutzern die Möglichkeit, langfristig gesicherte Immobiliennutzung mit optimiertem Kapitaleinsatz zu verbinden und zwei großzügige Bestandsimmobilien neu zu entwickeln.
DAS BAURECHT – IHR STRATEGIS..
Mehr
Auswahl ändern
Anbieter

Anbieter
Doris Rotschopf
Immobilien ROT - Doris RotschopfTelefon
+436643...

Anbieter kontaktieren