BESTER PREIS !! wunderschöne Wohnung mit Terrasse & Garten
2413 Edelstal








Objektinformation
Kosten
Kaufpreis€ 349.000
Provision
12.564,00 € inkl. 20% USt.
Vertragsart
, Kauf
Wohnfläche
84 m2 (3 Zimmer)
Freifläche
, Garten (109m²), Terrasse
Energie
HWB37 kWh/m²
HWB-KlasseB
Beschreibung
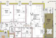
Tolle Wohnlage am Land- 3 Wohnungen, 3 Zimmer-Terrasse, Garten-Parkplatz – Ruhelage - Ortsende
Am Ortsrand von Edelstal, ist ein Wohnprojekt von einer kleinen Wohnhausanlage mit 3 Wohnungen sowie 6 Freistell- Parkplätzen und je nach Stockwerk mit Eigengarten oder Terrasse geplant.
Die gut aufgeteilten Wohnungen werden belags- oder schlüsselfertig übergeben.
Zu jeder Wohnung sind 2 PKW- Freistellplätze zugeteilt, die im Preis inbegriffen sind.
Fahrradraum sowie Müllplatz für Allgemeinnutzung.
2 Wohnungen im Erdgeschoß mit Garten:
Raumaufteilung Wo..
Am Ortsrand von Edelstal, ist ein Wohnprojekt von einer kleinen Wohnhausanlage mit 3 Wohnungen sowie 6 Freistell- Parkplätzen und je nach Stockwerk mit Eigengarten oder Terrasse geplant.
Die gut aufgeteilten Wohnungen werden belags- oder schlüsselfertig übergeben.
Zu jeder Wohnung sind 2 PKW- Freistellplätze zugeteilt, die im Preis inbegriffen sind.
Fahrradraum sowie Müllplatz für Allgemeinnutzung.
2 Wohnungen im Erdgeschoß mit Garten:
Raumaufteilung Wo..
Mehr
Auswahl ändern
Anbieter

Anbieter
Walter Pap
WB Immoagentur e.U.Telefon
0699 1164...

Anbieter kontaktieren
Downloads zum Objekt