Erstbezug Doppelhaushälfte 129m², 5 Zimmer, Garten, Terrasse & Stellplatz
1230 Wien, Liesing, Kaiser-Franz-Josef-Straße






















129,88 m²5 Zimmer€ 3.311,40
Objektinformation
Kosten
Gesamtbelastung (brutto)€ 3.311,40
Gesamtbelastung (netto)€ 3.002,18
Summe Miete (netto)€ 2.700,15
Miete / m²€ 20,79
Betriebskosten (netto)€ 302,03
Provision
Gemäß Erstauftraggeberprinzip bezahlt der Abgeber die Provision.
Kautionshinweis
€ 9.934,20
Vertragsart
, Miete , befristet
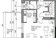
Wohnfläche
129,88 m2 (5 Zimmer)
Freifläche
, Garten (100m²), Terrasse
Bauart
Neubau: 1998
Energie
HWB85,9 kWh/m²
HWB-KlasseC
fGEE1,62
fGEE-KlasseC
Energieausweis bis2030-02-14
Beschreibung
Willkommen in Ihrem neuen Zuhause in 1230 Wien – einer modernen Doppelhaushälfte, die keine Wünsche offenlässt. Diese exklusive Immobilie bietet auf großzügigen 129,88 m² Wohnfläche fünf helle Zimmer, die perfekt auf Ihre individuellen Bedürfnisse abgestimmt sind. Ob Familienleben oder Arbeiten von Zuhause – hier finden Sie Raum für Ihre Träume.
Der Erstbezug garantiert Ihnen nicht nur modernste Ausstattung, sondern auch einen erstklassigen Zustand, der sofort bezogen werden kann. Genießen Sie entspannte Stunden in Ihrem eigenen Garten oder auf der großzügigen Westterrasse mit herrliche..
Der Erstbezug garantiert Ihnen nicht nur modernste Ausstattung, sondern auch einen erstklassigen Zustand, der sofort bezogen werden kann. Genießen Sie entspannte Stunden in Ihrem eigenen Garten oder auf der großzügigen Westterrasse mit herrliche..
Mehr
Lage
Diese charmante Doppelhaushälfte befindet sich in ruhiger Lage bei der Kaiser-Franz-Josef-Straße in 1230 Wien, nahe Ketzergasse und Rodaun. Perfekt angebunden: Arzt, Apotheke, Klinik, Schule, Kindergarten, Supermarkt, Bäckerei, Einkaufszentrum, Bank, Post sowie Bus- und Straßenbahnstationen sind bequem erreichbar – ideal für Familien und Pendler.
Auswahl ändern
Anbieter

Anbieter
Markus Frisch
M F Immobilien Consulting GmbHTelefon
+43 664 15...

Anbieter kontaktieren
