Vollausgestattetes 4 Zimmer Familienparadies mit Weitblick einen Steinwurf von der Schmelz
1160 Wien, Ottakring

360 Grad Ansicht Nr. 1













Objektinformation
Kosten
Kaufpreis€ 499.000
Betriebskosten (netto)€ 238,60
Provision
3.00 %
Vertragsart
, Kauf
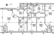
Wohnfläche
116 m2 (4 Zimmer)
Freifläche
, Loggia (2)
Objektart
Etagenwohnung
Bauart
Neubau: 2004
Energie
HWB35 kWh/m²
HWB-KlasseB
fGEE0,94
fGEE-KlasseB
Verfügbar
ab sofort
Beschreibung
Wo die Stadt funktioniert — und Wohnen Freude macht.
Es gibt Wohnungen, die man besichtigt. Und solche, bei denen man beim Eintreten bereits weiß: das ist es.
Diese hier gehört sicher zur zweiten Kategorie.
116 m², vier Zimmer, vierter Stock mit Lift — westseitig ausgerichtet, ruhig gelegen, in einer gepflegten Neubauanlage aus 2004. Der exzellente Heizwärmebedarf von HWB 35 kWh/a, hochwertige Isolierfenster und Fernwärme machen die Wohnung nicht nur komfortabel, sondern auch zukunftssicher.
Und Sie bekommen einen Grundriss, der einfach klug und praktisch ist. Der großzügige ..
Es gibt Wohnungen, die man besichtigt. Und solche, bei denen man beim Eintreten bereits weiß: das ist es.
Diese hier gehört sicher zur zweiten Kategorie.
116 m², vier Zimmer, vierter Stock mit Lift — westseitig ausgerichtet, ruhig gelegen, in einer gepflegten Neubauanlage aus 2004. Der exzellente Heizwärmebedarf von HWB 35 kWh/a, hochwertige Isolierfenster und Fernwärme machen die Wohnung nicht nur komfortabel, sondern auch zukunftssicher.
Und Sie bekommen einen Grundriss, der einfach klug und praktisch ist. Der großzügige ..
Mehr
Weitere Preisinformationen
- MwSt. Satz20,00 %
Auswahl ändern
Anbieter

Anbieter
Roald Austraat
RE/MAX SolutionsTelefon
+43 699/ 17 17...

Anbieter kontaktieren
Virtuelle Besichtigung