Entspanntes Wohnen in ruhiger Grünlage am beliebten Spallerhof! Großzügig geschnittene 2-Raum-Wohnung mit schöner Loggia! Wunderbarer Ausblick!
4020 Linz, Zinöggerweg













61,6 m²2 Zimmer€ 777,26
Objektinformation
Kosten
Gesamtbelastung (brutto)€ 777,26
Gesamtbelastung (netto)€ 702,73
Gesamtmiete (brutto)€ 712,27
Gesamtmiete (netto)€ 647,54
Summe Miete (netto)€ 497,43
Miete / m²€ 8,08
Betriebskosten (netto)€ 149,92
Kautionshinweis
€ 3.109,04
Vertragsart
, Miete
Wohnfläche
61,6 m2 (2 Zimmer)
Freifläche
, Loggia
Energie
HWB64,3 kWh/m²
HWB-KlasseC
fGEE1,13
fGEE-KlasseC
Energieausweis bis2034-12-10
Beschreibung
Linz / Bindermichl-Keferfeld / Zinöggerweg 30 :
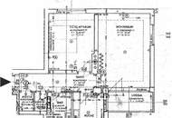
Die gut geschnittene 2-Zimmer-Wohnung mit ca. 61,64 m² überzeugt durch eine funktionale Raumaufteilung, helle Wohnräume und eine gemütliche Loggia mit schönem Ausblick.
Raumaufteilung & Highlights
Raumaufteilung:
• Großzügiger Wohnraum mit Zugang zur Loggia
• Schlafzimmer
• Separate Küche
• Badezimmer mit Badewanne
• Separates WC
• Praktischer Abstellraum
• Zentraler Vorraum (Gang)
Highlights
• Helle und optimal geschnittene 2-Zimmer-Wohnung
• Ca. 61,64 m² Wohnfläche
• Ge..
Die gut geschnittene 2-Zimmer-Wohnung mit ca. 61,64 m² überzeugt durch eine funktionale Raumaufteilung, helle Wohnräume und eine gemütliche Loggia mit schönem Ausblick.
Raumaufteilung & Highlights
Raumaufteilung:
• Großzügiger Wohnraum mit Zugang zur Loggia
• Schlafzimmer
• Separate Küche
• Badezimmer mit Badewanne
• Separates WC
• Praktischer Abstellraum
• Zentraler Vorraum (Gang)
Highlights
• Helle und optimal geschnittene 2-Zimmer-Wohnung
• Ca. 61,64 m² Wohnfläche
• Ge..
Mehr
Weitere Preisinformationen
- Heizkosten (netto)€ 55,19
- Sonstige Kosten€ 0,19
Auswahl ändern
Anbieter

Anbieter
Team Vermietung 3
WAG Wohnungsanlagen Gesellschaft m.b.H.Telefon
+43 (0)50 33...

Anbieter kontaktieren
Downloads zum Objekt
Virtuelle Besichtigung