Ab 01.05. bezugsbereit - Sanierung in Arbeit! Attraktive 1-Zimmer-Wohnung in Parknähe, optimal für Studenten oder Singles!
4020 Linz, Avenariusweg






31,84 m²1 Zimmer€ 409,29
Objektinformation
Kosten
Gesamtbelastung (brutto)€ 409,29
Gesamtbelastung (netto)€ 369,67
Gesamtmiete (brutto)€ 377,45
Gesamtmiete (netto)€ 343,14
Summe Miete (netto)€ 261,41
Miete / m²€ 8,21
Betriebskosten (netto)€ 81,73
Kautionshinweis
€ 1.637,16
Vertragsart
, Miete
Wohnfläche
31,84 m2 (1 Zimmer)
Energie
HWB57 kWh/m²
HWB-KlasseC
fGEE1,24
fGEE-KlasseC
Energieausweis bis2029-04-08
Beschreibung
Gemütliche 1-Zimmer-Wohnung mit durchdachtem Grundriss & Aufzug in Linz
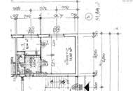
Zur Vermietung gelangt diese charmante und effizient geschnittene 1-Zimmer-Wohnung mit einer Wohnfläche von 31,84 m², gelegen in einem gepflegten Mehrparteienhaus in ruhiger Wohnlage von Linz. Die Wohnung befindet sich im Erdgeschoss (Top 3 rechts) und ist bequem über einen Aufzug erreichbar.
Die Wohnung befindet sich aktuell in Sanierung!
Raumaufteilung & Ausstattung:
* Beim Betreten der Wohnung gelangen Sie in einen kleinen Vorraum, der ausreichend Platz für Garderobe ..
Zur Vermietung gelangt diese charmante und effizient geschnittene 1-Zimmer-Wohnung mit einer Wohnfläche von 31,84 m², gelegen in einem gepflegten Mehrparteienhaus in ruhiger Wohnlage von Linz. Die Wohnung befindet sich im Erdgeschoss (Top 3 rechts) und ist bequem über einen Aufzug erreichbar.
Die Wohnung befindet sich aktuell in Sanierung!
Raumaufteilung & Ausstattung:
* Beim Betreten der Wohnung gelangen Sie in einen kleinen Vorraum, der ausreichend Platz für Garderobe ..
Mehr
Weitere Preisinformationen
- Heizkosten (netto)€ 26,53
Zusatzinformationen
ANSCHLÜSSE
Gas: nicht vorhanden
Kanal: nicht vorhanden
Wasser: nicht vorhanden
Strom: nicht vorhanden
Starkstrom: nicht vorhanden
Brunnen: nicht vorhanden
Telefon: nicht vorhanden
TV Kabel: nicht vorhanden
TV Sat: nicht vorhanden
Internet: nicht vorhanden
Fernwärme: nicht vorhanden
Senkgrube: nicht vorhanden
Auswahl ändern
Anbieter

Anbieter
Team Vermietung 3
WAG Wohnungsanlagen Gesellschaft m.b.H.Telefon
+43 (0)50 33...

Anbieter kontaktieren
Downloads zum Objekt
Virtuelle Besichtigung