Top 2-Zimmerwohnung im 15. Bezirk bei der U3!
1150 Wien, Rudolfsheim-Fünfhaus, Holochergasse
















47,18 m²2 Zimmer€ 899,00
Objektinformation
Kosten
Gesamtbelastung (brutto)€ 899,00
Gesamtbelastung (netto)€ 817,27
Summe Miete (netto)€ 701,68
Betriebskosten (netto)€ 115,59
Provision
Gemäß Erstauftraggeberprinzip bezahlt der Abgeber die Provision.
Kautionshinweis
€ 2.697,00, 2.700,00 €
Vertragsart
, Miete , befristet
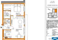
Wohnfläche
47,18 m2 (2 Zimmer)
Bauart
Neubau: 2011
Energie
HWB39,7 kWh/m²
HWB-KlasseB
fGEE0,95
fGEE-KlasseB
Energieausweis bis2031-09-20
Beschreibung
Top 2 Zimmerwohnung in zentraler Lage
Das Wohnhaus befindet sich in wunderbarer Lage. Das Objekt liegt zwischen den U-Bahnhaltestellen U3 Schweglerstraße und Johnstraße. Des weiteren sind die Straßenbahn 49 und die Autobusse 12A und N49 zu Fuß gut erreichbar. In direkter Umgebung befindet sich die Märzstraße mit sämtlichen Geschäften des täglichen Bedarfs. Natürlich sind auch Restaurants in unmittelbarer Reichweite und der Meiselmarkt lädt zum flanieren und Einkaufen frischer Produkte ein.
Diese Wohnung befindet sich im 4. Liftstock und verfügt über eine groß..
Mehr
Auswahl ändern
Anbieter

Anbieter
Helena Rohrauer
EHL Wohnen GmbHTelefon
+43 (664) 88...

Anbieter kontaktieren
Downloads zum Objekt
