Gewerbegrundstücke
Objekte nach Vertragsart
KaufMieteMietkaufPachtGewerbeobjekte
BüroGewerbeGastronomieHalleHotelLagerOrdinationZinshausGewerbegrunddibeo.at entdecken
Mieten vom Immo-Experten Kaufen vom Immo-Experten Virtuelle Rundgänge Vermieten oder verkaufen Info für Immobilien MaklerBüro mit Erstbezug mieten in Österreich




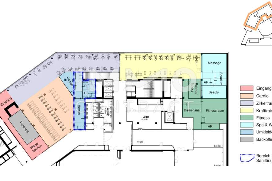
Zinshaus 3950 Gmünd
VOLL VERMIETET mit 6,5% Rendite - in Gmünd - Gesundheitszentrum - Ärztepraxen + Fitness
Ein attraktives Anlageobjekt steht in zentraler Lage von Gmünd, Niederösterreich, zum Verkauf. Das dreigeschossige Gebäude in massiver Bauweise bietet vielseitige Nutzungsmöglichkeiten und beeindruckt durch seine hervorragende Ausstattung und Lage. Vermietung
435,66 m² € 755.000




Gewerbeobjekt 9560 Feldkirchen in Kärnten
MIETE - Vielseitig nutzbare Geschäftslokal & Lagerflächen - CITY LAGE - Feldkirchen in der WÖRTHERSEE REGION
Diese attraktive Gewerbeimmobilie steht zur Vermietung und bietet eine einzigartige Gelegenheit für Unternehmer und Investoren, die auf der Suche nach einer flexiblen Gewerbefläche sind.Objektübersicht:Raumaufteilung und Nutzungsmöglichkeiten.
319,13 m² € 2.153,08




Gewerbeobjekt 1160 Wien, Ottakring
1160 Wien Eckgeschäftslokal in Ottakring zu kaufen
Zum Verkauf gelangt ein einladendes Eckgeschäftslokal in Ottakring, nur wenige Schritte vom beliebten Brunnenmarkt entfernt. Dieses Geschäftslokal besteht aus zwei Einheiten und bietet Ihnen die ideale Gelegenheit, Ihre unternehmerischen
141 m² € 319.000

Büro 1230 Wien, Liesing
Extravagant.Modern.Stilvoll. Büro mit bis zu 5m Raumhöhe!
Mitten im aufstrebenden Stadtteil Atzgersdorf im 23. Bezirk in Wien bietet die Fabik1230 diese moderne, flexibel gestaltbare Bürofläche in einem außergewöhnlichen Ambiente zur Miete an!Das Highlight des ca. 170m² großen Büros sind die großzügigen
170,11 m² € 4.082,64

Büro 1230 Wien, Liesing
NEU: Helle Bürofläche auf stilvollen 445m²
Mitten im aufstrebenden Stadtteil Atzgersdorf im 23. Bezirk in Wien bietet die Fabik1230 diese moderne, flexibel gestaltbare Bürofläche in einem außergewöhnlichen Ambiente zur Miete an!Das Highlight des ca. 445m² großen Büros sind die großzügigen
445,54 m² € 10.750,68

Büro 1210 Wien, Floridsdorf
TOP Fitnessstudiofläche im Business quartier TwentyONE
Diese Fitnessstudiofläche mit ca. 1.100,00m² befindet sich im 1.OG im Central Hub TwentyOne.Der Standort in der Siemensstraße verfügt über eine sehr gute Infrastruktur vor Ort sowie optimale öffentliche Verkehrsanbindung. Das TwentyOne
1.200 m² € 26.015,00

Büro 1210 Wien, Floridsdorf
Premiumbüro im Businessquartier-TwentyOne
1210 Wien | Teilbar ab 580 m² | Dachterrasse mit 455 m² FreiflächeObjekthighlights•Gesamtfläche: ca. 1.700 m² – teilbar ab 580 m²•Freifläche: ca. 455 m², inkl. großzügiger Dachterrasse (südöstlich ausgerichtet)•Flexible Nutzung:
1.700 m² Preis auf Anfrage

Büro 1220 Wien, Donaustadt
Kosteneffizient und modern - 270 m² Office
ROBIN - Inspired by Nature.Der nachhaltigste Workspace der Stadt!In der aspern Seestadt in Wien entsteht der erste ROBIN Gebäudekomplex auf Basis des 2226-Gebäudekonzepts der 2226 AG – und damit der nachhaltigste Workspace der Stadt. Die drei
219 m² € 5.019,48

Büro 1220 Wien, Donaustadt
Hochmodern und zukunftsorientiert - 219 m² Bürofläche zu vermieten
ROBIN - Inspired by Nature.Der nachhaltigste Workspace der Stadt!In der aspern Seestadt in Wien entsteht der erste ROBIN Gebäudekomplex auf Basis des 2226-Gebäudekonzepts der 2226 AG – und damit der nachhaltigste Workspace der Stadt. Die drei
219 m² Preis auf Anfrage

Büro 1220 Wien, Donaustadt
Helle und moderne Bürofläche - 273 m²
ROBIN - Inspired by Nature.Der nachhaltigste Workspace der Stadt!In der aspern Seestadt in Wien entsteht der erste ROBIN Gebäudekomplex auf Basis des 2226-Gebäudekonzepts der 2226 AG – und damit der nachhaltigste Workspace der Stadt. Die drei
273 m² Preis auf Anfrage

Büro 1220 Wien, Donaustadt
Top-Bürofläche im nachhaltigsten Workspace der Stadt
ROBIN - Inspired by Nature.Der nachhaltigste Workspace der Stadt!In der aspern Seestadt in Wien entsteht der erste ROBIN Gebäudekomplex auf Basis des 2226-Gebäudekonzepts der 2226 AG – und damit der nachhaltigste Workspace der Stadt. Die drei
222 m² Preis auf Anfrage

Büro 1220 Wien, Donaustadt
ROBIN - 272 m² Office im nachhaltigsten Workspace der Stadt!
ROBIN - Inspired by Nature.Der nachhaltigste Workspace der Stadt!In der aspern Seestadt in Wien entsteht der erste ROBIN Gebäudekomplex auf Basis des 2226-Gebäudekonzepts der 2226 AG – und damit der nachhaltigste Workspace der Stadt. Die drei
272 m² Preis auf Anfrage

Büro 1230 Wien, Liesing
NEU: 430 m² Office mit Skybox für Visionäre
Mitten im aufstrebenden Stadtteil Atzgersdorf im 23. Bezirk in Wien bietet die Fabik1230 diese moderne, flexibel gestaltbare Bürofläche in einem außergewöhnlichen Ambiente zur Miete an!Das Highlight des ca. 430 m² großen Büros sind die großzügigen
432,05 m² € 10.426,92

Büro 1220 Wien, Donaustadt
ROBIN - 264 m² Office im nachhaltigsten Workspace der Stadt!
ROBIN - Inspired by Nature.Der nachhaltigste Workspace der Stadt!In der aspern Seestadt in Wien entsteht der erste ROBIN Gebäudekomplex auf Basis des 2226-Gebäudekonzepts der 2226 AG – und damit der nachhaltigste Workspace der Stadt. Die drei
264 m² Preis auf Anfrage

Büro 1220 Wien, Donaustadt
Hochmodernes 461 m² Büro für Visionäre!
ROBIN Seestadt - der Ort für nachhaltiges Wachstum!In der aspern Seestadt in Wien entsteht der erste ROBIN Gebäudekomplex auf Basis des 2226-Gebäudekonzepts der 2226 AG – und damit der nachhaltigste Workspace der Stadt. Die drei separaten Häuser
€ 9.652,80

Büro 1220 Wien, Donaustadt
ROBIN - 233m² Office im nachhaltigsten Workspace der Stadt!
ROBIN - Inspired by Nature.Der nachhaltigste Workspace der Stadt!In der aspern Seestadt in Wien entsteht der erste ROBIN Gebäudekomplex auf Basis des 2226-Gebäudekonzepts der 2226 AG – und damit der nachhaltigste Workspace der Stadt. Die drei
233 m² Preis auf Anfrage

Büro 1220 Wien, Donaustadt
288 m² Office für Visionäre!
ROBIN Seestadt - der Ort für nachhaltiges Wachstum!In der aspern Seestadt in Wien entsteht der erste ROBIN Gebäudekomplex auf Basis des 2226-Gebäudekonzepts der 2226 AG – und damit der nachhaltigste Workspace der Stadt. Die drei separaten Häuser
288 m² € 6.117,12

Büro 1220 Wien, Donaustadt
Helle Büroflächen ohne Heiz- oder Kühlkosten!
ROBIN - Inspired by Nature.Der nachhaltigste Workspace der Stadt!In der aspern Seestadt in Wien entsteht der erste ROBIN Gebäudekomplex auf Basis des 2226-Gebäudekonzepts der 2226 AG – und damit der nachhaltigste Workspace der Stadt. Die drei
233 m² Preis auf Anfrage

Büro 1220 Wien, Donaustadt
222 m² Office im modernen Workspace ROBIN
ROBIN - Inspired by Nature.Der nachhaltigste Workspace der Stadt!In der aspern Seestadt in Wien entsteht der erste ROBIN Gebäudekomplex auf Basis des 2226-Gebäudekonzepts der 2226 AG – und damit der nachhaltigste Workspace der Stadt. Die drei
222 m² € 4.652,40

Büro 1220 Wien, Donaustadt
611 m² Büro ohne Kosten für Kühlung oder Heizung!
ROBIN - Inspired by Nature.Der nachhaltigste Workspace der Stadt - Ein Projekt von SORAVIA!In der aspern Seestadt in Wien entsteht der erste ROBIN Gebäudekomplex auf Basis des 2226-Gebäudekonzepts der 2226 AG – und damit der nachhaltigste
611 m² € 12.464,40

Büro 1220 Wien, Donaustadt
Innovatives Arbeiten auf 287 m²
ROBIN - Inspired by Nature.Der nachhaltigste Workspace der Stadt!In der aspern Seestadt in Wien entsteht der erste ROBIN Gebäudekomplex auf Basis des 2226-Gebäudekonzepts der 2226 AG – und damit der nachhaltigste Workspace der Stadt. Die drei
287 m² Preis auf Anfrage

Büro 1230 Wien, Liesing
ERSTBEZUG - Sonnendurchflutetes Terrassenbüro - 500 m²
Mitten im aufstrebenden Stadtteil Atzgersdorf im 23. Bezirk in Wien bietet die Fabik1230 diese moderne, flexibel gestaltbare Bürofläche in einem außergewöhnlichen Ambiente zur Miete an!Das Highlight des ca. 500 m² großen Büros sind die großzügigen
504,84 m² € 13.665,24

Büro 1220 Wien, Donaustadt
461 m² Office - ein Workspace ohne Heiz- und Kühlkosten!
ROBIN - Inspired by Nature.Der nachhaltigste Workspace der Stadt!In der aspern Seestadt in Wien entsteht der erste ROBIN Gebäudekomplex auf Basis des 2226-Gebäudekonzepts der 2226 AG – und damit der nachhaltigste Workspace der Stadt. Die drei
461 m² Preis auf Anfrage

Büro 1220 Wien, Donaustadt
ROBIN - 316 m² Office im nachhaltigsten Workspace der Stadt!
ROBIN - Inspired by Nature.Der nachhaltigste Workspace der Stadt!In der aspern Seestadt in Wien entsteht der erste ROBIN Gebäudekomplex auf Basis des 2226-Gebäudekonzepts der 2226 AG – und damit der nachhaltigste Workspace der Stadt. Die drei
316 m² Preis auf Anfrage

Büro 1220 Wien, Donaustadt
Keine Heizkosten! Hochmodernes Büro auf 598 m²
ROBIN - Inspired by Nature.Der nachhaltigste Workspace der Stadt!In der aspern Seestadt in Wien entsteht der erste ROBIN Gebäudekomplex auf Basis des 2226-Gebäudekonzepts der 2226 AG – und damit der nachhaltigste Workspace der Stadt. Die drei