2-Zimmerwohnung in Währing nahe Gersthof
1180 Wien, Währing, Staudgasse














2 Zimmer€ 1.373,90
Objektinformation
Kosten
Gesamtbelastung (brutto)€ 1.373,90
Gesamtbelastung (netto)€ 1.249,00
Summe Miete (netto)€ 1.081,40
Betriebskosten (netto)€ 167,60
Provision
Gemäß Erstauftraggeberprinzip bezahlt der Abgeber die Provision.
Kautionshinweis
3 Bruttomonatsmieten
Vertragsart
, Miete , befristet
Wohnfläche
keine Angabe
Bauart
Neubau: 2007
Energie
HWB39,4 kWh/m²
HWB-KlasseB
fGEE1,02
fGEE-KlasseC
Energieausweis bis2032-06-20
Verfügbar
ab sofort
Beschreibung
Eine charmante Wohnung wartet auf Sie!
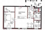
Die 2-Zimmerwohnung befindet sich im Erdgeschoss und bietet eine Nutzfläche von ca. 68 m².
Raumaufteilung:
+ Wohnraum mit angrenzender Küche
+ 1 Zimmer mit Schrankraum
+ Bad mit Wanne, Dusche und Waschmaschinenanschluss
+ separate Toilette mit Handwaschbecken
+ Vorraum
Zur allgemeinen Benutzung stehen den Bewohnern des Hauses ein Fahrradabstell- und Kinderwagenraum zur Verfügung. Direkt im Haus befindet sich eine Tiefgarage (monatliche Gesamtmiete für einen Stellplatz ab € 110,00).
Schöne Wohngegend nahe Gersthof
..
Die 2-Zimmerwohnung befindet sich im Erdgeschoss und bietet eine Nutzfläche von ca. 68 m².
Raumaufteilung:
+ Wohnraum mit angrenzender Küche
+ 1 Zimmer mit Schrankraum
+ Bad mit Wanne, Dusche und Waschmaschinenanschluss
+ separate Toilette mit Handwaschbecken
+ Vorraum
Zur allgemeinen Benutzung stehen den Bewohnern des Hauses ein Fahrradabstell- und Kinderwagenraum zur Verfügung. Direkt im Haus befindet sich eine Tiefgarage (monatliche Gesamtmiete für einen Stellplatz ab € 110,00).
Schöne Wohngegend nahe Gersthof
..
Mehr
Lage
Marie Ebner-Eschenbach-Park / Aumannplatz
Auswahl ändern
Anbieter

Anbieter
Christian Neissl
Immovent GmbHTelefon
+43 (0)664 888 ...

Anbieter kontaktieren
Downloads zum Objekt