Jahrhundertwendehaus mit großem Grundstück
3400 Klosterneuburg, Grüntal


































Objektinformation
Kosten
Kaufpreis€ 1.250.000
Provision
3% des Kaufpreises zzgl. 20% USt.
Vertragsart
, Kauf
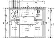
Wohnfläche
182 m2 (7 Zimmer)
Grundstück
6.241 m2
Freifläche
, Balkon, Terrasse
Objektart
Massivhaus
Bauart
Altbau: 1900
Energie
HWB148 kWh/m²
HWB-KlasseD
fGEE2,61
fGEE-KlasseE
Energieausweis bis1935-07-29
Beschreibung
Im idyllischen Grüntal in Klosterneuburg-Kierling gelangt diese außergewöhnliche Liegenschaft zum Verkauf. Die Lage ist absolut ruhig, grün und sonnig, zugleich nur wenige Minuten vom Ortszentrum Kierlings entfernt.
GRUNDSTÜCK
Das Grundstück liegt in einer moderaten Südwest-Hanglage und umfasst insgesamt 6.241 m², davon etwa 1.350 m² Bauland. Laut Flächenwidmungs- und Bebauungsbestimmungen sind offene Bauweise, Bauklasse I und II sowie bis zu zwei Wohneinheiten möglich. Die bebaubare Fläche beträgt ca. 225 m², die Straßenfront misst großzügige ca. 26 m.
In der Tiefe erstre..
GRUNDSTÜCK
Das Grundstück liegt in einer moderaten Südwest-Hanglage und umfasst insgesamt 6.241 m², davon etwa 1.350 m² Bauland. Laut Flächenwidmungs- und Bebauungsbestimmungen sind offene Bauweise, Bauklasse I und II sowie bis zu zwei Wohneinheiten möglich. Die bebaubare Fläche beträgt ca. 225 m², die Straßenfront misst großzügige ca. 26 m.
In der Tiefe erstre..
Mehr
Lage
Grüntal
Auswahl ändern
Anbieter

Anbieter
Georg Römer
Römer Real GmbHTelefon
+43 650 294...

Anbieter kontaktieren