Günstiges Wohnhaus in Wieselburg
3250 Wieselburg





















Objektinformation
Kosten
Kaufpreis€ 129.000
Provision
3% des Kaufpreises zzgl. 20% USt.
Vertragsart
, Kauf
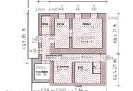
Wohnfläche
104,03 m2 (4 Zimmer)
Grundstück
266 m2
Freifläche
, Garten (188m²)
Objektart
Massivhaus
Bauart
Altbau: 1900
Energie
HWB393 kWh/m²
HWB-KlasseG
fGEE4,25
fGEE-KlasseG
Energieausweis bis2035-03-06
Beschreibung
Das Haus liegt zentral in einer steilen Hanglage mit zwei Zugängen, wobei der Hauptzugang über die Schulstraße erfolgt, wo man auch bequem im eigenen Carport parken kann. Von dort gelangt man über die betonierte Außentreppe ins Wohnhaus.
Errichtet wurde das Wohnhaus um ca. 1900, wobei laufende Instandhaltungsarbeiten durchgeführt wurden. Im Haus befindet sich eine Gasheizung, Kunststofffenster und auch das Dach wurde erneuert. Weiters wurde ein zusätzliches Gebäude mit einem Abstellraum und einen darüberliegenden großen Carport errichtet, wodurch ein ebenerdiger Zugang zur Schulstraße g..
Errichtet wurde das Wohnhaus um ca. 1900, wobei laufende Instandhaltungsarbeiten durchgeführt wurden. Im Haus befindet sich eine Gasheizung, Kunststofffenster und auch das Dach wurde erneuert. Weiters wurde ein zusätzliches Gebäude mit einem Abstellraum und einen darüberliegenden großen Carport errichtet, wodurch ein ebenerdiger Zugang zur Schulstraße g..
Mehr
Auswahl ändern
Anbieter

Anbieter
Johannes Wiesinger
s REAL - HaagTelefon
+43 664 8...

Anbieter kontaktieren
