Traumhafte 4-Zimmer-Maisonette in Brunn am Gebirge – modern, großzügig und vollsaniert | ZELLMANN IMMOBILIEN
2345 Brunn am Gebirge, Bahnstraße















Objektinformation
Kosten
Kaufpreis€ 395.000
Betriebskosten (netto)€ 144,24
Provision
3% des Kaufpreises zzgl. 20% USt.
Vertragsart
, Kauf
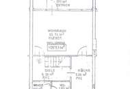
Wohnfläche
98 m2 (4 Zimmer)
Freifläche
, Loggia
Objektart
Maisonette
Bauart
Neubau: 1970
Energie
HWB133,4 kWh/m²
HWB-KlasseD
fGEE1,93
fGEE-KlasseD
Energieausweis bis2029-06-13
Verfügbar
ab sofort
Beschreibung
Entdecken Sie Ihr neues Zuhause in der charmanten Maisonette-Wohnung in 2345 Brunn am Gebirge, Niederösterreich, die Ihnen nicht nur Platz, sondern auch Lebensqualität bietet. Diese beeindruckende Immobilie befindet sich in der vierten Etage und überzeugt mit einer großzügigen Wohnfläche von 98 m².
Mit einem Kaufpreis von 395.000,00 € erhalten Sie ein vollsaniertes Zuhause, das modernen Komfort mit einem durchdachten Wohnkonzept vereint. Die Wohnung beherbergt insgesamt vier lichtdurchflutete Zimmer, die Ihnen viel Raum für individuelle Gestaltungsmöglichkeiten bieten.
Ein Highli..
Mit einem Kaufpreis von 395.000,00 € erhalten Sie ein vollsaniertes Zuhause, das modernen Komfort mit einem durchdachten Wohnkonzept vereint. Die Wohnung beherbergt insgesamt vier lichtdurchflutete Zimmer, die Ihnen viel Raum für individuelle Gestaltungsmöglichkeiten bieten.
Ein Highli..
Mehr
Weitere Preisinformationen
- Sonstige Kosten€ 213,17
Lage
Diese charmante Maisonettewohnung in der Bahnstraße 2345 in Brunn am Gebirge besticht durch ihre südliche Ausrichtung, die für helle und einladende Räume sorgt. Die Lage punktet mit einer hervorragenden Anbindung und einer Vielzahl an Nahversorgungsmöglichkeiten. In unmittelbarer Nähe finden Sie Arzt, Apotheke, Schule, Kindergarten sowie Supermarkt und Bäckerei. Zudem sind Bus, Bahnhof und weitere Einrichtungen wie Bank und Post schnell erreichbar. Genießen Sie die perfekte Kombination aus urbanem Leben und naturnaher Umgebung!
Auswahl ändern
Anbieter

Anbieter
Georg Papacek
ZELLMANN IMMOBILIEN GmbH | Vertrauen. Service. Qualität.Telefon
+43 664 410...

Anbieter kontaktieren