Absolute Ruhelage mit Fernsicht und Ganztagssonne in Höhenlage
8113 Sankt Oswald bei Plankenwarth, Fuxgrabenweg














74,94 m²3 Zimmer€ 598,56
Objektinformation
Kosten
Kaltmiete (netto)€ 598,56
Nebenkosten€ 138,28
Kautionshinweis
€ 2.000,00
Vertragsart
, Miete , unbefristet
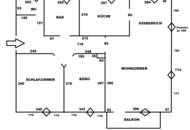
Wohnfläche
74,94 m2 (3 Zimmer)
Freifläche
, Balkon
Objektart
Etagenwohnung
Bauart
Neubau: 1997
Beschreibung
Wunderschön helle und geräumige Wohnung mit Balkon und Fernblick wartet auf seine neuen Bewohner, die im Jänner wieder verfügbar wird! In diesem angenehmen 4-Parteien Haus kommen sie im Obergeschoss auf ihre wohlverdiente Ruhe. Entspannen sie auf dem Sonnenbalkon und lassen sie den Tag mit Blick in den Sonnenuntergang ausklingen. Ideal für Kleinfamilien, Pärchen oder auch Singles die etwas mehr Platz benötigen. Ein eigener Parkplatz wie großes Kellerabteil tun ihr übriges zum perfekten Angebot. Gleich Anfragen und Termin vereinbaren!
Vorteile der Wohnung:
- absolute Ruhelage
- Fer..
Vorteile der Wohnung:
- absolute Ruhelage
- Fer..
Mehr
Weitere Preisinformationen
- MwSt. Satz20,00 %
- zzgl. MwSt.nein
- Heizkosten€ 81,46
Lage
Zentrum Plankenwarth mit öffentlicher Anbindung (Linie 120/121 Stiwoll, Gratwein und HBF Graz) und Einkaufsmöglichkeiten beim örtlichen Nahversorger nur 3min/250m Fussweg entfernt.
Kindergarten und die Volksschule befinden sind ebenso nur 350m hinter dem Gemeindeamt liegend, die nächste NMS gleich in Gratkorn etwa 5min Fahrtzeit entfernt.
Kindergarten und die Volksschule befinden sind ebenso nur 350m hinter dem Gemeindeamt liegend, die nächste NMS gleich in Gratkorn etwa 5min Fahrtzeit entfernt.
Zusatzinformationen
Mit Ihrer Anfrage stimmen Sie der Speicherung Ihrer Daten laut DSGVO zu.
Wichtig: Sollten Sie nach einer Mail Anfrage nicht innerhalb von max. 24h eine Antwort mit Exposé erhalten, bitte den Spam Ordner kontrollieren!
Irrtümer und fehlerhafte Angaben vorbehalten!
Wir weisen auf ein wirtschaftliches Naheverhältnis hin.
Auswahl ändern
Anbieter

Anbieter
Thomas Riffel, MSc MBA
Immobilienwelt Riffel GmbHTelefon
+43 664 2...

Anbieter kontaktieren
Downloads zum Objekt