Herzgasse - 2 Zimmer Neubau mit 2 Loggien und Garage
1100 Wien, Favoriten










53,07 m²2 Zimmer€ 813,93
Objektinformation
Kosten
Gesamtbelastung (brutto)€ 813,93
Gesamtbelastung (netto)€ 736,11
Summe Miete (netto)€ 481,85
Betriebskosten (netto)€ 254,26
Provision
Gemäß Erstauftraggeberprinzip bezahlt der Abgeber die Provision.
Kautionshinweis
4 Bruttomonatsmieten
Vertragsart
, Miete , befristet
Wohnfläche
53,07 m2 (2 Zimmer)
Grundstück
53,07 m2
Freifläche
, Loggia (2)
Bauart
Neubau
Energie
HWB43,3 kWh/m²
HWB-KlasseB
fGEE0,87
fGEE-KlasseB
Energieausweis bis2030-07-22
Beschreibung
1100 Wien - Herzgasse
2 Zimmer Neubauwohnung mit 2 Loggien und Garage zu vermieten,
die Wohnung kann ab sofort bezogen werden,
1. Liftstock,
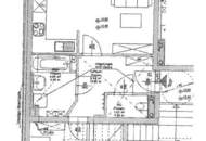
53,07m2 Wohnfläche zzgl. 4,41m2 Loggia (straßenseitig) und zzgl. 5,74m2 Loggia (hofseitig),
Wohnzimmer mit offener Küche und Zugang zur Loggia, Schlafzimmer mit Zugang zur Loggia, Vorzimmer,
Bad mit Wanne,
separates WC,
Fernwärme,
Mietdauer: 5 Jahr..
2 Zimmer Neubauwohnung mit 2 Loggien und Garage zu vermieten,
die Wohnung kann ab sofort bezogen werden,
1. Liftstock,
53,07m2 Wohnfläche zzgl. 4,41m2 Loggia (straßenseitig) und zzgl. 5,74m2 Loggia (hofseitig),
Wohnzimmer mit offener Küche und Zugang zur Loggia, Schlafzimmer mit Zugang zur Loggia, Vorzimmer,
Bad mit Wanne,
separates WC,
Fernwärme,
Mietdauer: 5 Jahr..
Mehr
Auswahl ändern
Anbieter

Anbieter
Michelle Gnadenberger
BRI Immobilienmakler GmbHTelefon
+43 676 7...

Anbieter kontaktieren