SPITALGASSE! Moderne Maisonette mit Dachterrasse im Gründerzeithaus
1090 Wien, Alsergrund, Michelbeuerngasse





















Objektinformation
Kosten
Kaufpreis€ 795.000
Betriebskosten (netto)€ 189,67
Provision
3% des Kaufpreises zzgl. 20% USt.
Vertragsart
, Kauf
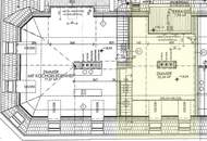
Wohnfläche
92 m2 (2 Zimmer)
Freifläche
, Terrasse
Objektart
Dachgeschosswohnung
Bauart
Altbau: 1858
Energie
HWB52 kWh/m²
HWB-KlasseC
fGEE0,89
fGEE-KlasseB
Energieausweis bis2036-01-19
Beschreibung
Diese hochwertige Dachterrassenwohnung im begehrten Alsergrund vereint historischen Charme mit modernem Wohnkomfort. Die Wohnung liegt in der Michelbeuerngasse / Ecke Spitalgasse und bietet eine ideale West-Ost-Ausrichtung mit Blick auf den Arne-Karlsson-Park sowie eine ruhige, hofseitige Dachterrasse.
Highlights auf einen Blick:
*
ca. 92 m² Wohnfläche auf 2 Ebenen
*
Lichtdurchfluteter Wohn-/Essbereich mit Küchenzeile
*
Galerie mit Schlafbereich und Zugang zur westseitigen Dachterrasse
*
Badezimmer mit Dusche, Badewanne, WC und Waschm..
Highlights auf einen Blick:
*
ca. 92 m² Wohnfläche auf 2 Ebenen
*
Lichtdurchfluteter Wohn-/Essbereich mit Küchenzeile
*
Galerie mit Schlafbereich und Zugang zur westseitigen Dachterrasse
*
Badezimmer mit Dusche, Badewanne, WC und Waschm..
Mehr
Weitere Preisinformationen
- Sonstige PreisangabenAbrechnung Fernwärme 1x jährlich über ISTA
- Heizkosten (netto)€ 202,03
- Sonstige Kosten€ 159,42
Auswahl ändern
Anbieter

Anbieter
Karin Hanika
Rudi Dräxler Immobilientreuhand GesmbHTelefon
+43 664 39...

Anbieter kontaktieren