dibeo.at
dibeo.at

ERSTBEZUG - GARTENWOHNUNG - 3-Zimmerwohnung in einem charmantem Altbau

8010 Graz, Naglergasse

ERSTBEZUG - GARTENWOHNUNG - 3-Zimmerwohnung in einem charmantem AltbauERSTBEZUG - GARTENWOHNUNG - 3-Zimmerwohnung in einem charmantem AltbauERSTBEZUG - GARTENWOHNUNG - 3-Zimmerwohnung in einem charmantem AltbauERSTBEZUG - GARTENWOHNUNG - 3-Zimmerwohnung in einem charmantem AltbauERSTBEZUG - GARTENWOHNUNG - 3-Zimmerwohnung in einem charmantem Altbau

3 Zimmer€ 1.454,24

Zur Merkliste hinzufügen
Kosten
Gesamtbelastung (brutto)€ 1.454,24
Provision
Gemäß Erstauftraggeberprinzip bezahlt der Abgeber die Provision.
Kautionshinweis
3 Bruttomonatsmieten
Vertragsart
, Miete , befristet
Wohnfläche
keine Angabe
Freifläche
, Garten (89m²), Terrasse
Bauart
Neubau
Energie
HWB32,6 kWh/m²
HWB-KlasseB
fGEE0,76
fGEE-KlasseA
Energieausweis bis2028-04-23
Verfügbar
ab sofort
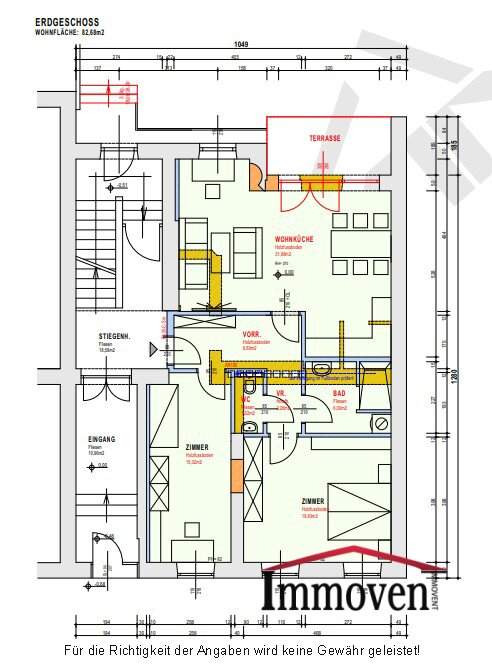
Eine Traumwohnung in einer ruhigen Lage!
Die 3-Zimmerwohnung befindet sich im Erdgeschoss (ohne Lift) und bietet eine Nutzfläche von ca. 83 m².

Raumaufteilung:
+ Wohnraum mit offener Küche und Zugang zur Terrasse und Garten
+ 2 Zimmer 
+ Bad mit Dusche 
+ separate Toilette mit Handwaschbecken
+ Vorraum 

+ Terrasse
+ Garten mit Terrasse auf der Rückseite des Hauses (ca. 65 m²)
+ Garten auf der Vorderseite des Hauses - übers Stiegenhaus erreichbar (ca. 24 m²)

+ Kellerabteil

Diese helle und freundliche Wohnung ist bereits fertigge..
Kontaktieren Sie bitte den Anbieter für weitere Details zur Adresse.
Zur Merkliste hinzufügen
Anbieter kontaktieren
Auswahl ändern
geraldgradwohl
Anbieter

Gerald Gradwohl

Immovent GmbH
Telefon
+43 (0)664 14 ...
Anbieter kontaktieren
Bitte um Zusendung von Unterlagen!
Bitte um einen Besichtigungstermin!
Bitte um einen Rückruf unter …
anrufen