EIN TRAUM IM GRÜNEN - Zweifamilienhaus in Ruhelage
3400 Klosterneuburg
















Objektinformation
Kosten
Kaufpreis€ 799.000
Provision
3% des Kaufpreises zzgl. 20% USt.
Vertragsart
, Kauf
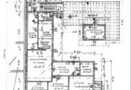
Wohnfläche
204 m2 (8 Zimmer)
Grundstück
1.463 m2
Freifläche
, Balkon, Terrasse (2)
Objektart
Massivhaus
Energie
HWB108,6 kWh/m²
HWB-KlasseD
fGEE2,07
fGEE-KlasseD
Energieausweis bis2029-04-09
Beschreibung
Verwirklichen Sie Ihren Traum vom naturnahen, unabhängigen Wohnen in unmittelbarer Stadtnähe. Dieses außergewöhnliche Anwesen vereint ländliche Idylle mit großzügigen Flächen und vielfältigen Gestaltungsmöglichkeiten. Auf insgesamt 1.463 m² Grund – davon rund 650 m² Bauland und 813 m² Grünland – eröffnet sich ein wahres Paradies für Familien, Selbstversorger oder alle, die Raum für Visionen suchen.
Das Haus bietet zwei getrennte Wohneinheiten mit zusammen über 200 m² Wohnfläche. Schon der zentrale, überdachte Vorraum (ca. 25 m²) bee..
Das Haus bietet zwei getrennte Wohneinheiten mit zusammen über 200 m² Wohnfläche. Schon der zentrale, überdachte Vorraum (ca. 25 m²) bee..
Mehr
Auswahl ändern
Anbieter

Anbieter
Lukas Schwaiger
APS Immobilien GmbHTelefon
+43 660 3...

Anbieter kontaktieren