Traumhaftes 3-Zimmer-Penthouse mit großer Terrasse
4020 Linz, Rainerstraße

















146 m²3 Zimmer€ 2.168,10
Objektinformation
Kosten
Gesamtbelastung (brutto)€ 2.168,10
Gesamtbelastung (netto)€ 1.971,00
Summe Miete (netto)€ 1.606,00
Betriebskosten (netto)€ 365,00
Kautionshinweis
€ 6.600,00
Vertragsart
, Miete , befristet
Wohnfläche
146 m2 (3 Zimmer)
Freifläche
, Terrasse
Objektart
Penthouse
Bauart
Altbau: 1874
Energie
HWB70,1 kWh/m²
HWB-KlasseC
Verfügbar
ab sofort
Beschreibung
Traumhafte 3-Zimmer-Penthousewohnung über 2 Etagen mit Terrasse im Zentrum von Linz
Die Maisonette-Wohnung befindet sich in an der Ecke Rainerstraße/Auerspergstraße, zwischen Schillerpark und Volksgarten und bietet einen wunderschönen Ausblick sowohl in Richtung Süden als auch in Richtung Westen.
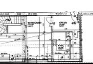
Die Immobilie verfügt über ca. 146 m² Wohnnutzfläche die sich wie folgt auf zwei Etagen aufteilt:
UG:
~ ein großer Eingangsbereich mit Garderobe
~ ein WC mit Handwaschbecken
~ ein Abstellraum
~ eine komplett eingerichtete Küche (ablösefrei!)
~ ein helles Wohn-Esszim..
Die Maisonette-Wohnung befindet sich in an der Ecke Rainerstraße/Auerspergstraße, zwischen Schillerpark und Volksgarten und bietet einen wunderschönen Ausblick sowohl in Richtung Süden als auch in Richtung Westen.
Die Immobilie verfügt über ca. 146 m² Wohnnutzfläche die sich wie folgt auf zwei Etagen aufteilt:
UG:
~ ein großer Eingangsbereich mit Garderobe
~ ein WC mit Handwaschbecken
~ ein Abstellraum
~ eine komplett eingerichtete Küche (ablösefrei!)
~ ein helles Wohn-Esszim..
Mehr
Auswahl ändern
Anbieter

Anbieter
Norbert Riha
ARL Immo GmbHTelefon
+43 664 2...

Anbieter kontaktieren